(最終更新日:2025年12月09日)
写真はA3タイプとなります新築物件ペット飼育可能マンションネット使用料込み(シーファイブ)
ID :1876002
※お問い合わせ時にこちらのID番号をスタッフにお伝えお願い致します。
1K マンション 賃貸 東京都 墨田区メインステージ八広II 0604
















賃料・初期費用
96,500円
管理費
15,000 円
敷金
0 円
礼金
0 円
物件情報
間取り
1K
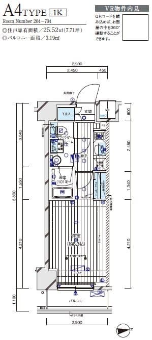
面積
25.52㎡
築年
2025年11月
物件種別
マンション
アクセス
交通
京成押上線 八広 徒歩 13分
東武亀戸線 小村井 徒歩 15分
住所
東京都 墨田区 八広3丁目38-12
0800-111-6663(無料)
海外から: +81-3-5155-4671
詳細情報
賃料
管理費
96,500 円
15,000 円
敷金
礼金
0 円
0 円
保証金
敷引金・償却金
0 円
- 円
間取り
1K
面積
25.52㎡
築年
2025年11月
階
6階 / 9階建
向き
東
物件種別
マンション
物件構造
鉄筋コンクリート造
住宅保険
要
入居可能日
即入居可
こだわり条件
ペット相談/都市ガス/風呂・トイレ別/洗濯機置き場(室内)/オートロック/エレベータ有/バルコニー/宅配ボックス/温水洗浄便座/浴室乾燥機/24時間ゴミ出し可/防犯カメラ/クローゼット・押入れ/シューズインクローゼット
追記事項
-
備考
写真はA3タイプとなりますネット込(シーファイブ)ペット可(敷1)保証会社必須(セゾン)引越し業者指定退去時要清掃代解約予告50日前電力業者指定有図面と現状が違う場合、現状優先とします。QRコードご参考ください。
※ 掲載情報と現状が異なる場合は現状優先といたします。
所在地
住所
東京都 墨田区 八広3丁目38-12
交通
京成押上線 八広 徒歩 13分
東武亀戸線 小村井 徒歩 15分
備考
保証会社
加入要(保証会社名:株式会社グローバルトラストネットワークス)
保証会社利用料:初回保証料
月額総賃料の30%〜100%(最低保証料 20,000円〜)
+ 年間保証料(10,000円)もしくは月間保証料(1,000円〜)
情報提供元
株式会社グローバルトラストネットワークス 新大久保支店
取引態様:媒介
〒169-0072 東京都新宿区大久保1-15-15 AKIYAMA BLD 2階
宅地建物取引業 国土交通大臣(2)第9148号
(公社)東京都宅地建物取引業協会 会員
(公財)日本賃貸住宅管理協会 会員
(公社)首都圏不動産公正取引協議会 団体会員
(最終更新日:{date})
2025/12/06
次回更新日
2025/12/15
契約期間
-
0800-111-6663(無料)
海外から: +81-3-5155-4671









