(Última atualização: 2026年02月25日)
ID :1961231
*Por favor, diga-nos este número de identificação se você estiver fazendo alguma consulta.
1R Apartamento padrão Alugar apartamento Tokyo Toshima-kuメインステージ板橋EAST 0707


























Aluguel/custo inicial
122,500Yen
Taxa de manutenção
20,000 Yen
Depósito
0 Yen
Dinheiro chave
122,500 Yen
Custo inicial
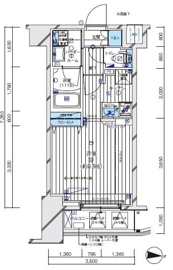
Tipo de sala
1R
Área
25.72㎡
Data de arquitetura
2019/7/
tipo de construção
Apartamento padrão
Acesso
Transporte
Saikyo Line Itabashi Walk 3min
Toei Mita Line Shin-Itabashi Walk 9min
Endereço
Tokyo Toshima-ku 上池袋4丁目43-12
0800-111-6663(gratuito)
Do exterior: +81-3-5155-4671
Informações detalhadas
Aluguel
Taxa de manutenção
122,500 Yen
20,000 Yen
Depósito
Dinheiro chave
0 Yen
122,500 Yen
Depósito de garantia
Depósito de garantia não reembolsável
0 Yen
- Yen
Tipo de sala
1R
Área
25.72㎡
Data de arquitetura
2019/7/
Andar
7Andar / 8Prédio de andares
Direção
east
tipo de construção
Apartamento padrão
Tipo de estrutura
Concreto armado
Seguro residencial
Required
Data de Ocupação
Consultar
Critério de busca
Não permitido animais/Gás municipal/Chuveiro e banheiro separado/Fogão de mais de 2 bocas/Área para máquina de lavar/Fechadura eletrônica/Elevador/Sacada/Caixa Postal/Estacionamento p/ bicicleta/Estacionamento p/ moto/Interfone c/ camera/Privada com jato de água quente/Banheiro c/ secador de roupas /Jogar lixo em qualquer horário /Câmera de segurança/Closet/Sapateira/Tem ar condicionado
Nota
-
Outras despesas
ハウスクリーニング費用(退去時請求):49500
退去時鍵交換費用(契約時請求):29700
AMLクラブサポート費用(契約時請求):16500
Observações
-
※ Se as informações publicadas forem diferentes do status atual, damos prioridade ao status atual.
localização
Endereço
Tokyo Toshima-ku 上池袋4丁目43-12
Transporte
Saikyo Line Itabashi Walk 3min
Toei Mita Line Shin-Itabashi Walk 9min
Observações
Empresa fiadora
Assinatura necessária (nome da empresa de garantia: Global Trust Networks Co. Ltd.)
Garantia Empresa Taxa de utilização: Taxa de garantia inicial de 30% a 100% da renda total mensal (taxa mínima de garantia de 20,000 ienes ~)
+ Taxa de garantia anual (10.000 ienes) ou Taxa de garantia mensal (1.000 ienes ~)
Fonte de informações
Global Trust Networks Co.,Ltd.
Shin-Okubo Branch
AKIYAMA BLD. 2nd Floor
1-15-15 Okubo, Shinjuku-ku, Tokyo 169-0072 Japan
Member of THE TOKYO REAL ESTATE PUBLIC INTEREST INCORPORATED ASSOCIATION
Member of JAPAN PROPERTY MANAGEMENT ASSOCIATION
Group member of REAL ESTATE FAIR TRADE COUNCIL
(Última atualização: {date})
2026/02/23
Próxima data de atualização
2026/03/03
Período do contrato
-
0800-111-6663(gratuito)
Do exterior: +81-3-5155-4671


