(Última atualização: 2026年02月27日)
☆人気エリア☆広々1LDK☆ ☆一部リノベーション予定☆
ID :1971612
*Por favor, diga-nos este número de identificação se você estiver fazendo alguma consulta.
1LDK Apartamento padrão Alugar apartamento Tokyo Minato-kuベルジューレ高輪 0203






































Aluguel/custo inicial
183,000Yen
Taxa de manutenção
15,000 Yen
Depósito
0 Yen
Dinheiro chave
183,000 Yen
Custo inicial
Tipo de sala
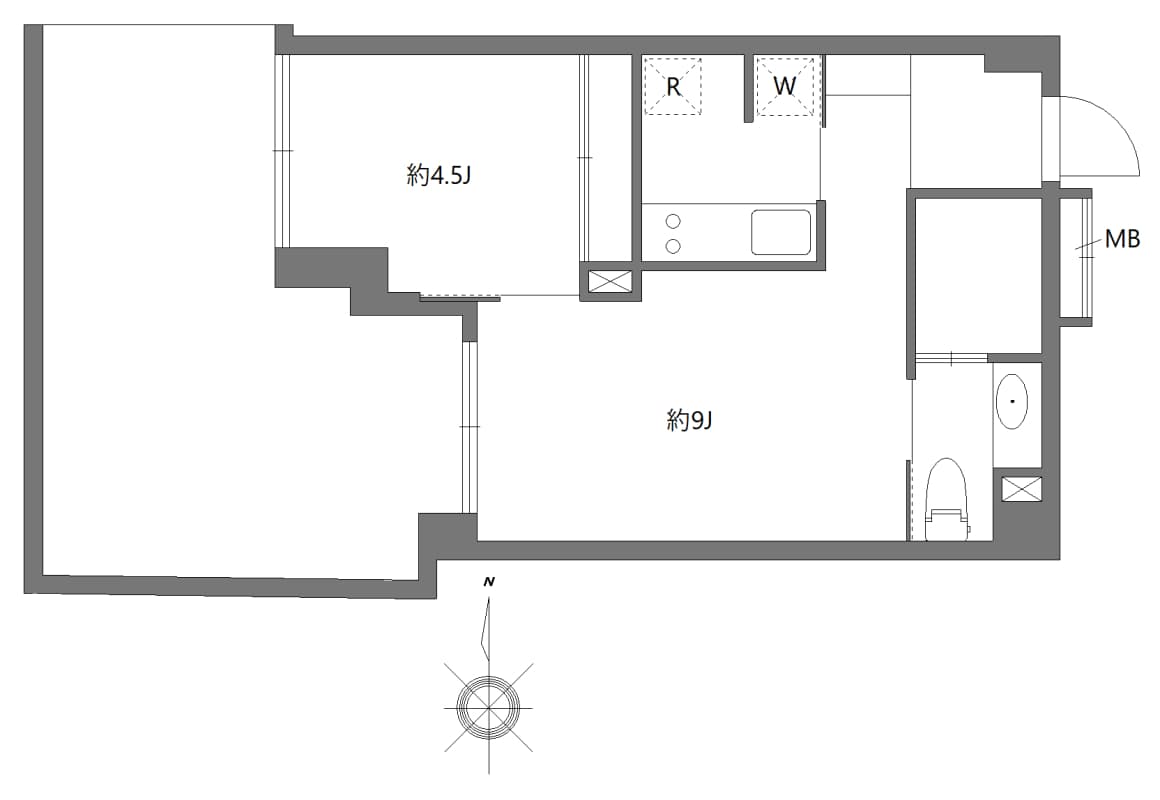
1LDK
Área
36.35㎡
Data de arquitetura
2005/3/
tipo de construção
Apartamento padrão
Acesso
Transporte
Yamanote Line Shinagawa Walk 13min
Toei Asakusa Line Takanawadai Walk 5min
Endereço
Tokyo Minato-ku 高輪3丁目14-41
0800-111-6663(gratuito)
Do exterior: +81-3-5155-4671
Informações detalhadas
Aluguel
Taxa de manutenção
183,000 Yen
15,000 Yen
Depósito
Dinheiro chave
0 Yen
183,000 Yen
Depósito de garantia
Depósito de garantia não reembolsável
- Yen
- Yen
Tipo de sala
1LDK
Área
36.35㎡
Data de arquitetura
2005/3/
Andar
1Andar / 5Prédio de andares
Direção
west
tipo de construção
Apartamento padrão
Tipo de estrutura
Concreto armado
Seguro residencial
Required
Data de Ocupação
Consultar
Critério de busca
Permitido animais/Gás municipal/Chuveiro e banheiro separado/Fogão de mais de 2 bocas/Área para máquina de lavar/Fechadura eletrônica/Elevador/Piso de madeira/Estacionamento p/ bicicleta/Apartamento de canto/Privada com jato de água quente/Banheiro c/ secador de roupas /Lavatório independente/Internet ilimitado/Closet/Tem ar condicionado
Nota
-
Outras despesas
プレミアデスク(2年/税込):22000
契約時ルームクリーニング費用(税込):88000
Observações
■短期解約違約金:1年未満1カ月 ■解約予告:2カ月前 ■プレミアデスク代の中に登録料6600円(税込)を含みます。 ■大手法人契約時【+礼1】で諸条件ご相談可 ■PET飼育時 敷金1ヶ月プラス ※電力会社の指定有り。 イーネットワークシステムズ 03-6809-4061 ※写真はリノベーション済み住戸のものとなりますのでご注意ください。
※ Se as informações publicadas forem diferentes do status atual, damos prioridade ao status atual.
localização
Endereço
Tokyo Minato-ku 高輪3丁目14-41
Transporte
Yamanote Line Shinagawa Walk 13min
Toei Asakusa Line Takanawadai Walk 5min
Observações
Empresa fiadora
Assinatura necessária (nome da empresa de garantia: Global Trust Networks Co. Ltd.)
Garantia Empresa Taxa de utilização: Taxa de garantia inicial de 30% a 100% da renda total mensal (taxa mínima de garantia de 20,000 ienes ~)
+ Taxa de garantia anual (10.000 ienes) ou Taxa de garantia mensal (1.000 ienes ~)
Fonte de informações
Global Trust Networks Co.,Ltd.
Shin-Okubo Branch
AKIYAMA BLD. 2nd Floor
1-15-15 Okubo, Shinjuku-ku, Tokyo 169-0072 Japan
Member of THE TOKYO REAL ESTATE PUBLIC INTEREST INCORPORATED ASSOCIATION
Member of JAPAN PROPERTY MANAGEMENT ASSOCIATION
Group member of REAL ESTATE FAIR TRADE COUNCIL
(Última atualização: {date})
2026/02/26
Próxima data de atualização
2026/03/12
Período do contrato
-
0800-111-6663(gratuito)
Do exterior: +81-3-5155-4671