Para proporcionar melhores informações, solicitamos o consentimento do uso da política da privacidade baseado na obtenção do Cookies🍪
Tokyo Tachikawashi 高松町3丁目
Chuo Main Line Tachikawa Walk 12min
Tama City Monorail Takamatsu Walk 9min
2003/ 8/

Tokyo Tachikawashi 柴崎町4丁目6-32
Chuo Main Line Tachikawa Walk 10min
Tama City Monorail Shibasaki-Taiikukan Walk 4min
2021/ 6/

Tokyo Tachikawashi 富士見町1丁目
Ome Line Nishi-Tachikawa Walk 8min
Ome Line Tachikawa Bus 5min
Ome Line Tachikawa Walk 18min
1986/ 5/
Tokyo Tachikawashi 西砂町6丁目
Seibu Haijima Line Seibu Tachikawa Walk 21min
2003/ 8/

Tokyo Tachikawashi 高松町2丁目26-3
Chuo Main Line Tachikawa Walk 11min
Tama City Monorail Tachikawa-Kita Walk 11min
Tama City Monorail Takamatsu Walk 11min
1993/ 3/

Tokyo Tachikawashi 曙町1丁目16-8
Chuo Main Line Tachikawa Walk 6min
Tama City Monorail Tachikawa-Kita Walk 5min
Tama City Monorail Tachikawa-Minami Walk 6min
2007/ 3/

Tokyo Tachikawashi 東京都立川市高松町1丁目24-41
Chuo Main Line Tachikawa Walk 18min
1992/ 3/

Tokyo Tachikawashi 東京都立川市高松町3丁目21-3
Chuo Main Line Tachikawa Walk 7min
1989/ 6/

Tokyo Tachikawashi 高松町1丁目2-15
1995/ 2/

Tokyo Tachikawashi 錦町1丁目7-20
Chuo Main Line Tachikawa Walk 6min
Nambu Line Tachikawa Walk 6min
2013/ 11/

Tokyo Tachikawashi 錦町3丁目
Chuo Main Line Tachikawa Walk 9min
Nambu Line Nishi-Kunitachi Walk 8min
2022/ 7/
Tokyo Tachikawashi 上砂町3丁目
Chuo Main Line Tachikawa Bus 20min
Chuo Main Line Tachikawa Walk 11min
Seibu Haijima Line Musashi-Sunagawa Walk 17min
2006/ 4/
Tokyo Tachikawashi 幸町3丁目
Tama City Monorail Sunagawa-Nanaban Walk 15min
Tama City Monorail Izumi-Taiikukan Walk 17min
2003/ 7/
Tokyo Tachikawashi 幸町3丁目
Tama City Monorail Izumi-Taiikukan Walk 15min
Seibu Haijima Line Higashi-Yamatoshi Walk 24min
1999/ 7/

Tokyo Tachikawashi 高松町3丁目21-24
Chuo Main Line Tachikawa Walk 10min
2020/ 4/

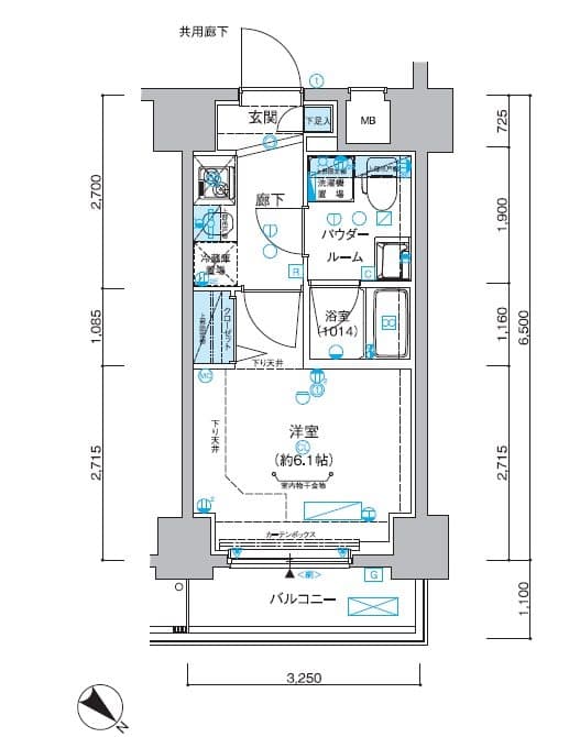
1K / 21.12㎡ / 2Andar
Tokyo Tachikawashi 錦町2丁目
Chuo Main Line Tachikawa Walk 10min
Nambu Line Nishi-Kunitachi Walk 11min
2007/ 7/

Tokyo Tachikawashi 東京都立川市柏町3丁目23-1
Tama City Monorail Sunagawa-Nanaban Walk 7min
Seibu Haijima Line Tamagawajosui Walk 15min
1994/ 3/
Tokyo Tachikawashi 柏町3丁目
Tama City Monorail Sunagawa-Nanaban Walk 9min
2015/ 8/