Próxima data de atualização
ID :1793656
*Por favor, diga-nos este número de identificação se você estiver fazendo alguma consulta.
1K Apartamento padrão Alugar apartamento Kyoto Kyotoshi Nakagyo-kuクレストタップ京都丹波口 201
































Aluguel/custo inicial
71,300Yen
Taxa de manutenção
10,000 Yen
Depósito
0 Yen
Dinheiro chave
0 Yen
Custo inicial
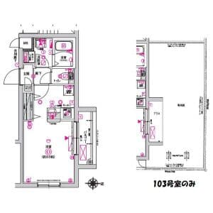
Tipo de sala
1K
Área
25.11㎡
Data de arquitetura
2025/10/
tipo de construção
Apartamento padrão
Acesso
Transporte
Sanin Main Line Tanbaguchi Walk 8min
Hankyu Kyoto Main Line Omiya Walk 13min
Endereço
Kyoto Kyotoshi Nakagyo-ku 京都府京都市中京区壬生松原町49-4
0800-111-6663(gratuito)
Do exterior: +81-3-5155-4671
Informações detalhadas
Aluguel
Taxa de manutenção
71,300 Yen
10,000 Yen
Depósito
Dinheiro chave
0 Yen
0 Yen
Depósito de garantia
Depósito de garantia não reembolsável
0 Yen
- Yen
Tipo de sala
1K
Área
25.11㎡
Data de arquitetura
2025/10/
Andar
2Andar / 5Prédio de andares
Direção
south
tipo de construção
Apartamento padrão
Tipo de estrutura
Concreto armado
Seguro residencial
Required
Data de Ocupação
Imóvel disponível para ocupação
Critério de busca
Locação para 2 pessoas/Não permitido animais/Chuveiro e banheiro separado/Espaço de armazenamento de máquina de lavar roupa disponível/Fechadura eletrônica/Elevador/Sacada/Caixa Postal/Estacionamento p/ bicicleta/Apartamento de canto/Banheiro c/ secador de roupas /Câmera de segurança/Tem ar condicionado
Nota
-
Observações
-
※ Se as informações publicadas forem diferentes do status atual, damos prioridade ao status atual.
localização
Endereço
Kyoto Kyotoshi Nakagyo-ku 京都府京都市中京区壬生松原町49-4
Transporte
Sanin Main Line Tanbaguchi Walk 8min
Hankyu Kyoto Main Line Omiya Walk 13min
Observações
Empresa fiadora
Assinatura necessária (nome da empresa de garantia: Global Trust Networks Co. Ltd.)
Garantia Empresa Taxa de utilização: Taxa de garantia inicial de 30% a 100% da renda total mensal (taxa mínima de garantia de 20,000 ienes ~)
+ Taxa de garantia anual (10.000 ienes) ou Taxa de garantia mensal (1.000 ienes ~)
Fonte de informações
Global Trust Networks Co.,Ltd.
Shin-Okubo Branch
AKIYAMA BLD. 2nd Floor
1-15-15 Okubo, Shinjuku-ku, Tokyo 169-0072 Japan
Member of THE TOKYO REAL ESTATE PUBLIC INTEREST INCORPORATED ASSOCIATION
Member of JAPAN PROPERTY MANAGEMENT ASSOCIATION
Group member of REAL ESTATE FAIR TRADE COUNCIL
Próxima data de atualização
2025/12/07
Próxima data de atualização
2025/12/14
Período do contrato
-
0800-111-6663(gratuito)
Do exterior: +81-3-5155-4671









