Próxima data de atualização
ID :1796273
*Por favor, diga-nos este número de identificação se você estiver fazendo alguma consulta.
1K Apartamento padrão Alugar apartamento Tokyo Minato-kuメインステージ浜松町 0503


























Aluguel/custo inicial
109,000Yen
Taxa de manutenção
18,000 Yen
Depósito
0 Yen
Dinheiro chave
109,000 Yen
Custo inicial
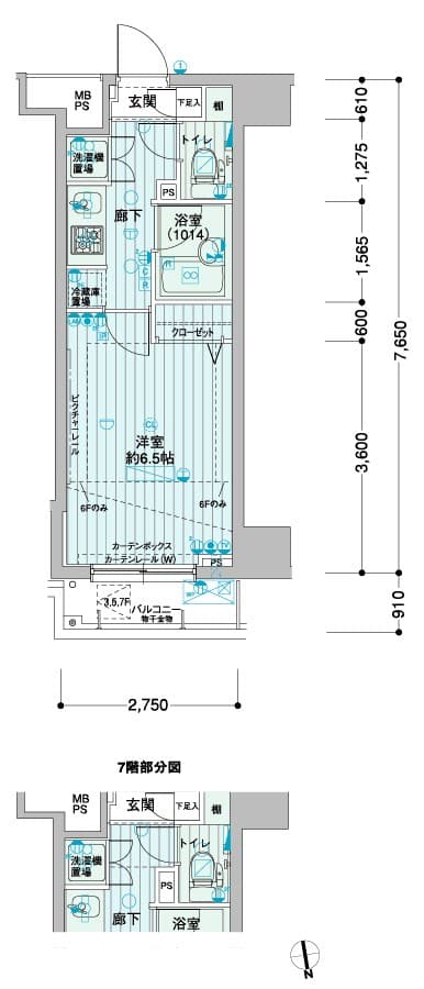
Tipo de sala
1K
Área
20.87㎡
Data de arquitetura
2005/7/
tipo de construção
Apartamento padrão
Acesso
Transporte
Toei Asakusa Line Daimon Walk 3min
Yamanote Line Hamamatsucho Walk 4min
Endereço
Tokyo Minato-ku 浜松町1丁目12-3
0800-111-6663(gratuito)
Do exterior: +81-3-5155-4671
Informações detalhadas
Aluguel
Taxa de manutenção
109,000 Yen
18,000 Yen
Depósito
Dinheiro chave
0 Yen
109,000 Yen
Depósito de garantia
Depósito de garantia não reembolsável
0 Yen
- Yen
Tipo de sala
1K
Área
20.87㎡
Data de arquitetura
2005/7/
Andar
5Andar / 10Prédio de andares
Direção
north-east
tipo de construção
Apartamento padrão
Tipo de estrutura
Concreto armado
Seguro residencial
Required
Data de Ocupação
Consultar
Critério de busca
Gás municipal/Chuveiro e banheiro separado/Fogão de mais de 2 bocas/Área para máquina de lavar/Fechadura eletrônica/Elevador/Sacada/Caixa Postal/Estacionamento p/ bicicleta/Interfone c/ camera/Banheiro c/ secador de roupas /Jogar lixo em qualquer horário /Câmera de segurança/Closet/Sapateira/Tem ar condicionado
Nota
-
Observações
-
※ Se as informações publicadas forem diferentes do status atual, damos prioridade ao status atual.
Endereço
Tokyo Minato-ku 浜松町1丁目12-3
Transporte
Toei Asakusa Line Daimon Walk 3min
Yamanote Line Hamamatsucho Walk 4min
Observações
Empresa fiadora
Assinatura necessária (nome da empresa de garantia: Global Trust Networks Co. Ltd.)
Garantia Empresa Taxa de utilização: Taxa de garantia inicial de 30% a 100% da renda total mensal (taxa mínima de garantia de 20,000 ienes ~)
+ Taxa de garantia anual (10.000 ienes) ou Taxa de garantia mensal (1.000 ienes ~)
Fonte de informações
Global Trust Networks Co.,Ltd.
Shin-Okubo Branch
AKIYAMA BLD. 2nd Floor
1-15-15 Okubo, Shinjuku-ku, Tokyo 169-0072 Japan
Member of THE TOKYO REAL ESTATE PUBLIC INTEREST INCORPORATED ASSOCIATION
Member of JAPAN PROPERTY MANAGEMENT ASSOCIATION
Group member of REAL ESTATE FAIR TRADE COUNCIL
Próxima data de atualização
2025/10/19
Próxima data de atualização
2025/10/26
Período do contrato
-
0800-111-6663(gratuito)
Do exterior: +81-3-5155-4671