Próxima data de atualização
2026/01/21解約予定
ID :1825171
*Por favor, diga-nos este número de identificação se você estiver fazendo alguma consulta.
1K Apartamento padrão Alugar apartamento Osaka Osakashi Naniwa-kuセオリー夕陽丘DOOR 0507
































Aluguel/custo inicial
63,010Yen
Taxa de manutenção
5,490 Yen
Depósito
- Yen
Dinheiro chave
- Yen
Custo inicial
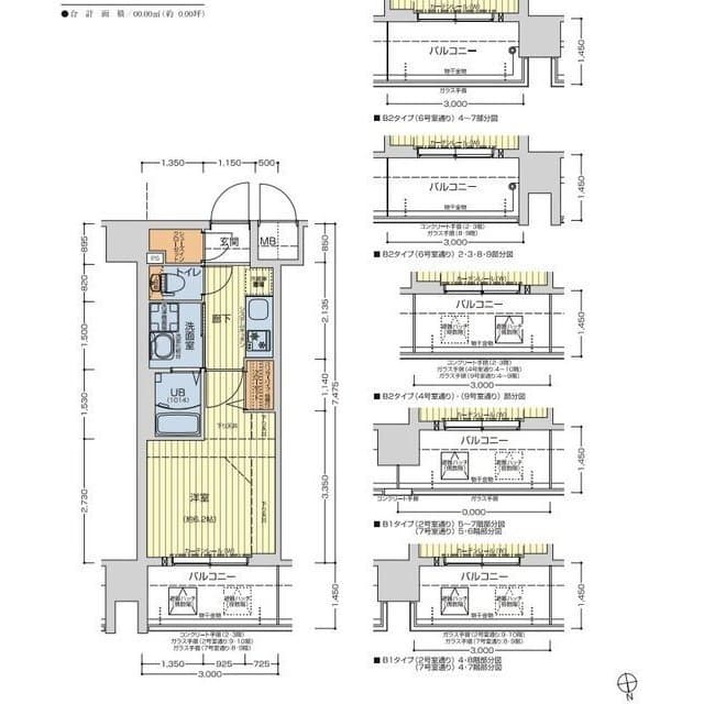
Tipo de sala
1K
Área
22.42㎡
Data de arquitetura
2019/12/
tipo de construção
Apartamento padrão
Acesso
Transporte
Tanimachi Line Shitennojimaeyuhigaoka Walk 11min
Midosuji Line Dobutsuen-Mae Walk 6min
Endereço
Osaka Osakashi Naniwa-ku 下寺3丁目7番19
0800-111-6663(gratuito)
Do exterior: +81-3-5155-4671
Informações detalhadas
Aluguel
Taxa de manutenção
63,010 Yen
5,490 Yen
Depósito
Dinheiro chave
- Yen
- Yen
Depósito de garantia
Depósito de garantia não reembolsável
- Yen
- Yen
Tipo de sala
1K
Área
22.42㎡
Data de arquitetura
2019/12/
Andar
5Andar / 10Prédio de andares
Direção
north
tipo de construção
Apartamento padrão
Tipo de estrutura
Concreto armado
Seguro residencial
Required
Data de Ocupação
2026-2
Critério de busca
Não permitido animais/Gás municipal/Chuveiro/Fogão de mais de 2 bocas/Lavatório separado/Área para máquina de lavar/Antena CS/Antena BS/Fechadura eletrônica/Elevador/Sacada/Piso de madeira/Interfone c/ camera/Privada com jato de água quente/Lavatório independente/Câmera de segurança/Closet/Sapateira/Tem ar condicionado
Nota
-
Observações
■短期違約金:1年未満の解約は家賃+共益費の2か月分■法人契約:家賃+共益費1か月分礼金要 ■解約予告2ヶ月前(退去時日割) ■入居者アプリ必須 ■保証会社sumai保証 ほっと保証(初回保証料:100%※最低保証料4万円、月額保証料:税別800円、年間保証料2万円) ■本貸室の電気供給は賃貸でんき契約が必須です(0120-772-003)
※ Se as informações publicadas forem diferentes do status atual, damos prioridade ao status atual.
localização
Endereço
Osaka Osakashi Naniwa-ku 下寺3丁目7番19
Transporte
Tanimachi Line Shitennojimaeyuhigaoka Walk 11min
Midosuji Line Dobutsuen-Mae Walk 6min
Observações
Empresa fiadora
Assinatura necessária (nome da empresa de garantia: Global Trust Networks Co. Ltd.)
Garantia Empresa Taxa de utilização: Taxa de garantia inicial de 30% a 100% da renda total mensal (taxa mínima de garantia de 20,000 ienes ~)
+ Taxa de garantia anual (10.000 ienes) ou Taxa de garantia mensal (1.000 ienes ~)
Fonte de informações
Global Trust Networks Co.,Ltd.
Shin-Okubo Branch
AKIYAMA BLD. 2nd Floor
1-15-15 Okubo, Shinjuku-ku, Tokyo 169-0072 Japan
Member of THE TOKYO REAL ESTATE PUBLIC INTEREST INCORPORATED ASSOCIATION
Member of JAPAN PROPERTY MANAGEMENT ASSOCIATION
Group member of REAL ESTATE FAIR TRADE COUNCIL
Próxima data de atualização
2025/11/06
Próxima data de atualização
2025/11/14
Período do contrato
-
0800-111-6663(gratuito)
Do exterior: +81-3-5155-4671





