Próxima data de atualização
ID :1841384
*Por favor, diga-nos este número de identificação se você estiver fazendo alguma consulta.
2K Apartamento padrão Alugar apartamento Tokyo Adachi-kuアーバハイツ六町1号館 503


























































Aluguel/custo inicial
80,000Yen
Taxa de manutenção
15,000 Yen
Depósito
0 Yen
Dinheiro chave
80,000 Yen
Custo inicial
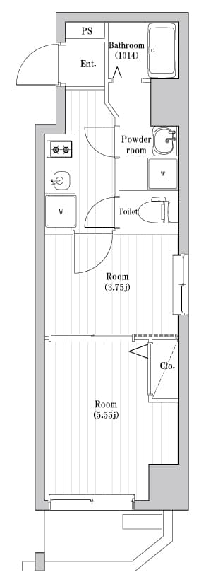
Tipo de sala
2K
Área
27.91㎡
Data de arquitetura
2021/4/
tipo de construção
Apartamento padrão
Acesso
Transporte
Tsukuba Express Rokucho Walk 7min
Chiyoda Line Kita-Ayase Walk 16min
Endereço
Tokyo Adachi-ku 六町1丁目1-6
0800-111-6663(gratuito)
Do exterior: +81-3-5155-4671
Informações detalhadas
Aluguel
Taxa de manutenção
80,000 Yen
15,000 Yen
Depósito
Dinheiro chave
0 Yen
80,000 Yen
Depósito de garantia
Depósito de garantia não reembolsável
0 Yen
- Yen
Tipo de sala
2K
Área
27.91㎡
Data de arquitetura
2021/4/
Andar
5Andar / 6Prédio de andares
Direção
north
tipo de construção
Apartamento padrão
Tipo de estrutura
Concreto armado
Seguro residencial
Required
Data de Ocupação
2026-1-Meio do mês
Critério de busca
Locação para 2 pessoas/Gás municipal/Chuveiro e banheiro separado/Chuveiro/Área para máquina de lavar/Fechadura eletrônica/Elevador/Piso de madeira/Caixa Postal/Interfone c/ camera/Privada com jato de água quente/Design moderno/Banheiro c/ secador de roupas /Internet ilimitado/Closet/Sapateira/Tem ar condicionado
Nota
-
Observações
-
※ Se as informações publicadas forem diferentes do status atual, damos prioridade ao status atual.
Endereço
Tokyo Adachi-ku 六町1丁目1-6
Transporte
Tsukuba Express Rokucho Walk 7min
Chiyoda Line Kita-Ayase Walk 16min
Observações
Empresa fiadora
Assinatura necessária (nome da empresa de garantia: Global Trust Networks Co. Ltd.)
Garantia Empresa Taxa de utilização: Taxa de garantia inicial de 30% a 100% da renda total mensal (taxa mínima de garantia de 20,000 ienes ~)
+ Taxa de garantia anual (10.000 ienes) ou Taxa de garantia mensal (1.000 ienes ~)
Fonte de informações
Global Trust Networks Co.,Ltd.
Shin-Okubo Branch
AKIYAMA BLD. 2nd Floor
1-15-15 Okubo, Shinjuku-ku, Tokyo 169-0072 Japan
Member of THE TOKYO REAL ESTATE PUBLIC INTEREST INCORPORATED ASSOCIATION
Member of JAPAN PROPERTY MANAGEMENT ASSOCIATION
Group member of REAL ESTATE FAIR TRADE COUNCIL
Próxima data de atualização
2025/11/14
Próxima data de atualização
2025/11/21
Período do contrato
-
0800-111-6663(gratuito)
Do exterior: +81-3-5155-4671


