Para proporcionar melhores informações, solicitamos o consentimento do uso da política da privacidade baseado na obtenção do Cookies🍪

Ishikawa Kanazawa-shi 武蔵町1-16
JR Hokuriku Line(Toyama-Naoetsu) Kanazawa Walk 16min
1986/ 9/

- / 99.66㎡ / 3Andar

- / 64.51㎡ / 4Andar

Ishikawa Kanazawa-shi 竪町45-2
JR Hokuriku Line(Toyama-Naoetsu) Kanazawa Walk 31min
Hokuriku Railroad Ishikawa Line Nomachi Walk 17min
2007/ 3/

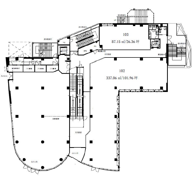
- / 87.15㎡ / 1Andar

- / 337.06㎡ / 1Andar

- / 984.64㎡ / -

- / 88.69㎡ / 2Andar

- / 201.56㎡ / 2Andar

- / 94.52㎡ / 2Andar

- / 100.84㎡ / 2Andar

- / 111.18㎡ / 2Andar

Ishikawa Kanazawa-shi 上堤町2-37
JR Hokuriku Line(Toyama-Naoetsu) Kanazawa Walk 20min
1971/ 3/

- / 74.93㎡ / 5Andar

- / 19.23㎡ / 2Andar

- / 76.03㎡ / 3Andar

- / 195.42㎡ / 7Andar