更新日期
ID :1828406
※洽詢時請告訴服務人員您的 ID 號碼。
1LDK 高級公寓 租赁物件 東京都 荒川区THE Grande regalo 東日暮里 601






































租金/初始成本
175,000日元
管理費
21,000 日元
押金
175,000 日元
禮金
175,000 日元
物件名稱
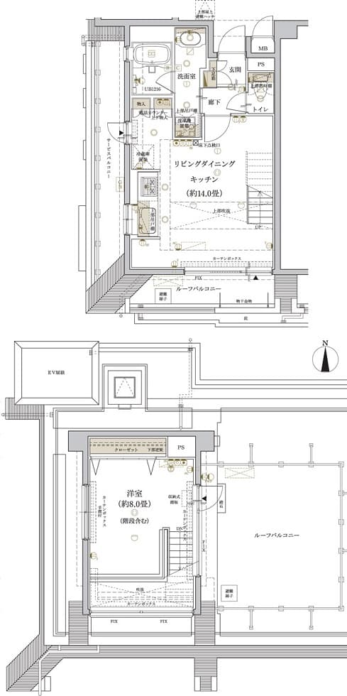
格局
1LDK
面積
50.52㎡
建築年數
2013年2月
建築物種類
高級公寓
交通
交通
山手線 莺谷 步行 8分鐘
山手線 日暮里 步行 12分鐘
住所
東京都 荒川区 東日暮里4丁目19-8
0800-111-6663(免費)
來自海外: +81-3-5155-4671
詳細資訊
房租
管理費
175,000 日元
21,000 日元
押金
禮金
175,000 日元
175,000 日元
保證金
押金(不會退還)
0 日元
175,000 日元
格局
1LDK
面積
50.52㎡
建築年數
2013年2月
所在樓層
6所在樓層 / 7層樓
方位
南
建築物種類
高級公寓
構造
钢筋混凝土
住宅保險
要
可入住日
2026-1-中旬
條件
可二人入住/寵物可商談/都市煤氣/浴室、廁所分開/淋浴/重新加熱/洗衣機放置處(室内)/自動鎖/電梯/地板/智能自助快遞櫃/附機車停車場/可視門鈴/溫水洗淨便器/設計住宅/浴室乾燥機/壁櫥/鞋櫃/有冷氣
後記
-
備註
-
※ 刊登內容與現狀不相符的時候,以現場狀況為準。
位置
住所
東京都 荒川区 東日暮里4丁目19-8
交通
山手線 莺谷 步行 8分鐘
山手線 日暮里 步行 12分鐘
備註
保證公司
必須:(保證公司名:股份有限公司全球信賴網)
保證費用:頭期款 一個月份房租的30~100%(最低20,000日幣~)
+每年保證費用10,000日幣或每月1,000日幣~
資訊提供者
Global Trust Networks Co.,Ltd.
新大久保店
〒169-0072
東京都新宿区大久保1-15-15 AKIYAMA BLD2階
Member of THE TOKYO REAL ESTATE PUBLIC INTEREST INCORPORATED ASSOCIATION
Member of JAPAN PROPERTY MANAGEMENT ASSOCIATION
Group member of REAL ESTATE FAIR TRADE COUNCIL
更新日期
2025/11/13
下次更新日期
2025/11/20
契約期間
-
0800-111-6663(免費)
來自海外: +81-3-5155-4671