更新日期
ID :1833720
※洽詢時請告訴服務人員您的 ID 號碼。
1K 高級公寓 租赁物件 神奈川県 川崎市高津区エクセリア二子多摩川 406号室










租金/初始成本
81,000日元
管理費
5,000 日元
押金
0 日元
禮金
81,000 日元
物件名稱
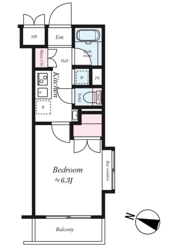
格局
1K
面積
22.37㎡
建築年數
2006年8月
建築物種類
高級公寓
交通
交通
东急大井町线 高津(神奈川) 步行 7分鐘
东急田园都市线 二子新地 步行 8分鐘
住所
神奈川県 川崎市高津区 二子1丁目11-38
0800-111-6663(免費)
來自海外: +81-3-5155-4671
詳細資訊
房租
管理費
81,000 日元
5,000 日元
押金
禮金
0 日元
81,000 日元
保證金
押金(不會退還)
- 日元
- 日元
格局
1K
面積
22.37㎡
建築年數
2006年8月
所在樓層
4所在樓層 / 5層樓
方位
南西
建築物種類
高級公寓
構造
钢筋混凝土
住宅保險
要
可入住日
2025-12-中旬
條件
可飼養寵物/都市煤氣/浴室、廁所分開/洗衣機放置處(室内)/自動鎖/地板/拐角房間/可視門鈴/独立洗面台/鞋櫃/有冷氣
後記
-
備註
・個人申込の場合、「電子契約くん」でご契約いただきます。・お問い合わせについては、物件検索後の各項目の下記に記載しております【賃貸仲介様向けFAQサイト】にアクセスし、ご確認ください。
※ 刊登內容與現狀不相符的時候,以現場狀況為準。
位置
住所
神奈川県 川崎市高津区 二子1丁目11-38
交通
东急大井町线 高津(神奈川) 步行 7分鐘
东急田园都市线 二子新地 步行 8分鐘
備註
保證公司
必須:(保證公司名:股份有限公司全球信賴網)
保證費用:頭期款 一個月份房租的30~100%(最低20,000日幣~)
+每年保證費用10,000日幣或每月1,000日幣~
資訊提供者
Global Trust Networks Co.,Ltd.
新大久保店
〒169-0072
東京都新宿区大久保1-15-15 AKIYAMA BLD2階
Member of THE TOKYO REAL ESTATE PUBLIC INTEREST INCORPORATED ASSOCIATION
Member of JAPAN PROPERTY MANAGEMENT ASSOCIATION
Group member of REAL ESTATE FAIR TRADE COUNCIL
更新日期
2025/11/13
下次更新日期
2025/11/20
契約期間
-
0800-111-6663(免費)
來自海外: +81-3-5155-4671