更新日期
ID :1833937
※洽詢時請告訴服務人員您的 ID 號碼。
1LDK 高級公寓 租赁物件 東京都 新宿区ハーモニーレジデンス神楽坂ヒルズsecond 409




































租金/初始成本
219,500日元
管理費
20,000 日元
押金
0 日元
禮金
109,750 日元
物件名稱
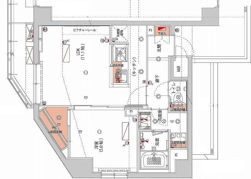
格局
1LDK
面積
40.66㎡
建築年數
2019年9月
建築物種類
高級公寓
交通
交通
有楽町線 江户川桥 步行 5分鐘
東西線 神乐坂 步行 8分鐘
住所
東京都 新宿区 山吹町12-16
0800-111-6663(免費)
來自海外: +81-3-5155-4671
詳細資訊
房租
管理費
219,500 日元
20,000 日元
押金
禮金
0 日元
109,750 日元
保證金
押金(不會退還)
0 日元
- 日元
格局
1LDK
面積
40.66㎡
建築年數
2019年9月
所在樓層
4所在樓層 / 6層樓
方位
北西
建築物種類
高級公寓
構造
钢筋混凝土
住宅保險
要
可入住日
2025-11-下旬
條件
可二人入住/寵物可商談/都市煤氣/浴室、廁所分開/淋浴/重新加熱/步入式衣帽間/洗衣機放置處(室内)/自動鎖/電梯/地板/智能自助快遞櫃/附自行車停車場/附機車停車場/可視門鈴/溫水洗淨便器/設計住宅/吧台式廚房/浴室乾燥機/免費使用網路/壁櫥/鞋櫃/有冷氣
後記
-
備註
-
※ 刊登內容與現狀不相符的時候,以現場狀況為準。
位置
住所
東京都 新宿区 山吹町12-16
交通
有楽町線 江户川桥 步行 5分鐘
東西線 神乐坂 步行 8分鐘
備註
保證公司
必須:(保證公司名:股份有限公司全球信賴網)
保證費用:頭期款 一個月份房租的30~100%(最低20,000日幣~)
+每年保證費用10,000日幣或每月1,000日幣~
資訊提供者
Global Trust Networks Co.,Ltd.
新大久保店
〒169-0072
東京都新宿区大久保1-15-15 AKIYAMA BLD2階
Member of THE TOKYO REAL ESTATE PUBLIC INTEREST INCORPORATED ASSOCIATION
Member of JAPAN PROPERTY MANAGEMENT ASSOCIATION
Group member of REAL ESTATE FAIR TRADE COUNCIL
更新日期
2025/11/12
下次更新日期
2025/11/20
契約期間
-
0800-111-6663(免費)
來自海外: +81-3-5155-4671
