更新日期
ID :1834471
※洽詢時請告訴服務人員您的 ID 號碼。
1K 高級公寓 租赁物件 東京都 大田区グランアセット千鳥町 203


























租金/初始成本
114,000日元
管理費
6,000 日元
押金
0 日元
禮金
0 日元
物件名稱
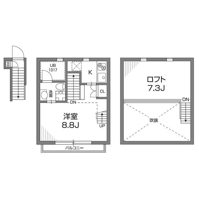
格局
1K
面積
38.78㎡
建築年數
2008年2月
建築物種類
高級公寓
交通
交通
东急池上线 千鸟町 步行 2分鐘
东急多摩川线 下丸子 步行 7分鐘
住所
東京都 大田区 千鳥3丁目1-2
0800-111-6663(免費)
來自海外: +81-3-5155-4671
詳細資訊
房租
管理費
114,000 日元
6,000 日元
押金
禮金
0 日元
0 日元
保證金
押金(不會退還)
- 日元
- 日元
格局
1K
面積
38.78㎡
建築年數
2008年2月
所在樓層
2所在樓層 / 2層樓
方位
西
建築物種類
高級公寓
構造
钢筋混凝土
住宅保險
不要
可入住日
2026-1-下旬
條件
可二人入住/都市煤氣/浴室、廁所分開/雙口以上爐灶/重新加熱/附閣樓/洗衣機放置處(室内)/自動鎖/附自行車停車場/可視門鈴/溫水洗淨便器/浴室乾燥機/独立洗面台/防盜攝像監控/免費使用網路/壁櫥/鞋櫃/有冷氣
後記
-
備註
二人入居相談可/外国籍可:2年未満解約で違約金1か月(共益費含む)
※ 刊登內容與現狀不相符的時候,以現場狀況為準。
位置
住所
東京都 大田区 千鳥3丁目1-2
交通
东急池上线 千鸟町 步行 2分鐘
东急多摩川线 下丸子 步行 7分鐘
備註
保證公司
必須:(保證公司名:股份有限公司全球信賴網)
保證費用:頭期款 一個月份房租的30~100%(最低20,000日幣~)
+每年保證費用10,000日幣或每月1,000日幣~
資訊提供者
Global Trust Networks Co.,Ltd.
新大久保店
〒169-0072
東京都新宿区大久保1-15-15 AKIYAMA BLD2階
Member of THE TOKYO REAL ESTATE PUBLIC INTEREST INCORPORATED ASSOCIATION
Member of JAPAN PROPERTY MANAGEMENT ASSOCIATION
Group member of REAL ESTATE FAIR TRADE COUNCIL
更新日期
2025/11/13
下次更新日期
2025/11/20
契約期間
-
0800-111-6663(免費)
來自海外: +81-3-5155-4671