更新日期
ID :1834480
※洽詢時請告訴服務人員您的 ID 號碼。
1LDK 高級公寓 租赁物件 東京都 大田区ダイナシティ池上 601号室


























租金/初始成本
141,000日元
管理費
10,000 日元
押金
0 日元
禮金
141,000 日元
物件名稱
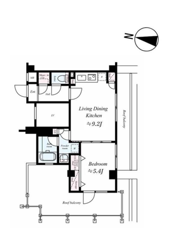
格局
1LDK
面積
38.63㎡
建築年數
2007年7月
建築物種類
高級公寓
交通
交通
东急池上线 池上 步行 7分鐘
东急多摩川线 武藏新田 步行 11分鐘
住所
東京都 大田区 池上7丁目21-19
0800-111-6663(免費)
來自海外: +81-3-5155-4671
詳細資訊
房租
管理費
141,000 日元
10,000 日元
押金
禮金
0 日元
141,000 日元
保證金
押金(不會退還)
- 日元
- 日元
格局
1LDK
面積
38.63㎡
建築年數
2007年7月
所在樓層
6所在樓層 / 6層樓
方位
南
建築物種類
高級公寓
構造
钢筋混凝土
住宅保險
要
可入住日
2026-1-下旬
條件
可二人入住/可飼養寵物/都市煤氣/浴室、廁所分開/雙口以上爐灶/洗衣機放置處(室内)/自動鎖/陽台/地板/拐角房間/可視門鈴/独立洗面台/防盜攝像監控/鞋櫃/有冷氣
後記
-
備註
・個人申込の場合、「電子契約くん」でご契約いただきます。・お問い合わせについては、物件検索後の各項目の下記に記載しております【賃貸仲介様向けFAQサイト】にアクセスし、ご確認ください。
※ 刊登內容與現狀不相符的時候,以現場狀況為準。
位置
住所
東京都 大田区 池上7丁目21-19
交通
东急池上线 池上 步行 7分鐘
东急多摩川线 武藏新田 步行 11分鐘
備註
保證公司
必須:(保證公司名:股份有限公司全球信賴網)
保證費用:頭期款 一個月份房租的30~100%(最低20,000日幣~)
+每年保證費用10,000日幣或每月1,000日幣~
資訊提供者
Global Trust Networks Co.,Ltd.
新大久保店
〒169-0072
東京都新宿区大久保1-15-15 AKIYAMA BLD2階
Member of THE TOKYO REAL ESTATE PUBLIC INTEREST INCORPORATED ASSOCIATION
Member of JAPAN PROPERTY MANAGEMENT ASSOCIATION
Group member of REAL ESTATE FAIR TRADE COUNCIL
更新日期
2025/11/13
下次更新日期
2025/11/20
契約期間
-
0800-111-6663(免費)
來自海外: +81-3-5155-4671