(最后更新日期:2026年01月11日)
★当社の更新料なし、事務手数料16500円(税込)のみ!★インターネット無料★TVモニター付きインタ
ID :1767572
※咨询时请告知工作人员此处您的ID号码。
1DK 公寓 租赁物件 愛知県 名古屋市熱田区メモリアル 201




































租金/初始成本
58,000日元
管理费
4,000 日元
押金
0 日元
礼金
0 日元
物件
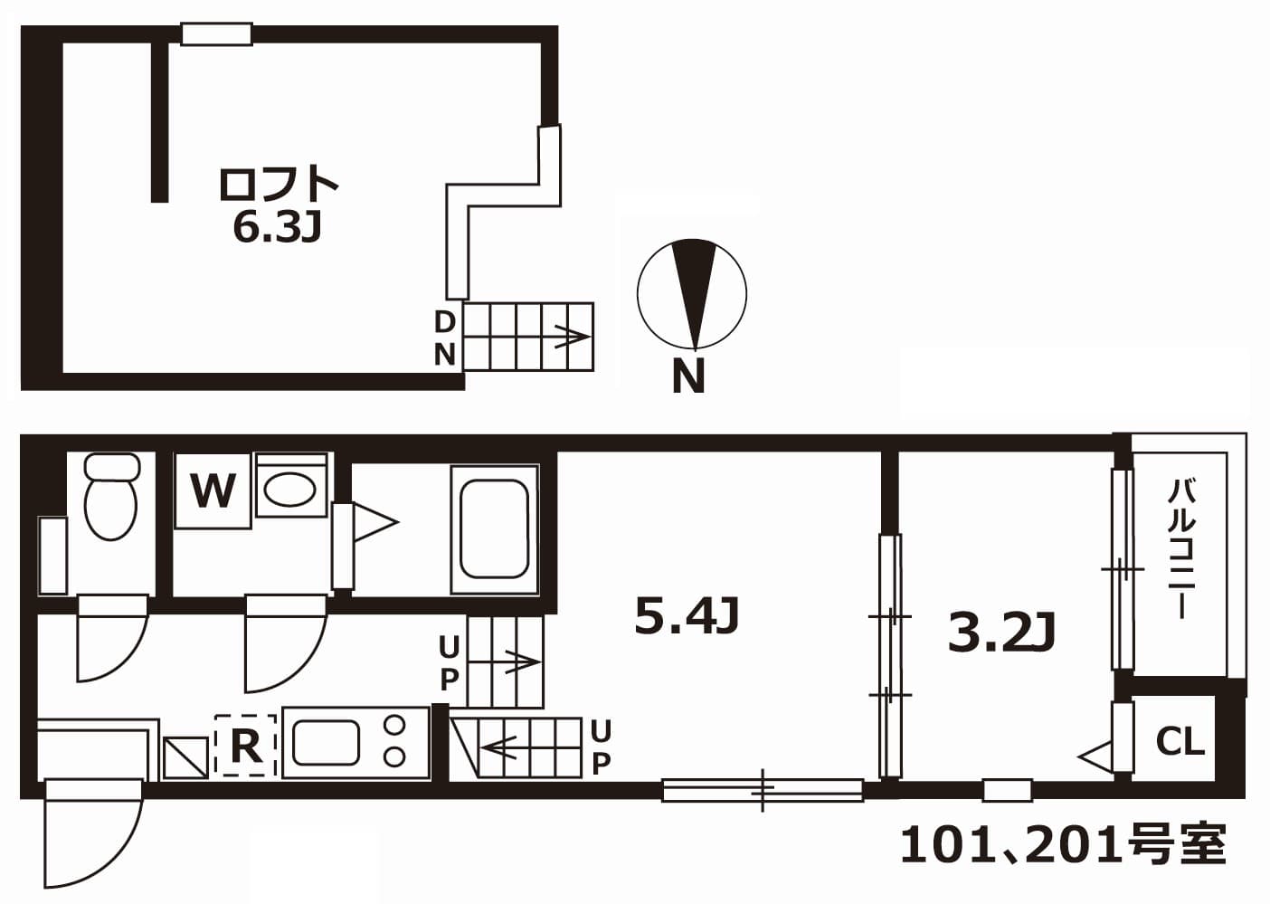
房间布局
1DK
面积
25.05㎡
建筑年月日
2018年4月
建筑物类别
公寓
交通
交通
名古屋市営名港线 六番町 步行 6分
名古屋市営名港线 日比野(名古屋市營) 步行 16分
住所
愛知県 名古屋市熱田区 二番2丁目4-13-2
0800-111-6663(免费)
来自海外: +81-3-5155-4671
详细信息
房租
管理费
58,000 日元
4,000 日元
押金
礼金
0 日元
0 日元
保证金
押金(不退还)
0 日元
- 日元
房间布局
1DK
面积
25.05㎡
建筑年月日
2018年4月
楼
2楼 / 2层楼的建筑
朝向
西
建筑物类别
公寓
构造
木头
房屋火灾保险
要
可入住时间
2026-1
详细条件
可二人入住/学生欢迎/LP煤气/浴室、卫生间分开/淋浴/双口以上炉灶/附阁楼/洗衣机放置处(室内)/阳台/地板/拐角房间/可视门铃/温水洗净座便器/浴室干燥机/独立洗面台/免费使用网络/壁橱/鞋柜/有空调
备考
-
其他
■更新事務手数料:16500円(税込) ■エアコン2台目以降は退去時に22000円(税込)/台が必要となります。 ■短期解約違約金:1年未満2カ月 ■解約予告:2カ月前 (大手法人に限り礼金1ヶ月プラスで解約予告:1ヶ月に変更可) ■プレミアデスク代の中に登録料6600円(税込)を含みます。 ■インターネット無料 ■本物件は電子契約となります。
※ 登载内容与现状不符的时候,以现状为准。
位置
住所
愛知県 名古屋市熱田区 二番2丁目4-13-2
交通
名古屋市営名港线 六番町 步行 6分
名古屋市営名港线 日比野(名古屋市營) 步行 16分
其他
保证公司
必须(保证公司名:株式会社全球信赖网)
保证公司费用:初期保证费 月房租的30%~100%(最低保证费20,000日元~)
+年度保证费(10,000日元)或月度保证费(1,000日元~)
信息提供者
Global Trust Networks Co.,Ltd.
新大久保分公司
〒169 - 0072
東京都新宿区大久保1-15-15 AKIYAMA BLD2楼
Member of THE TOKYO REAL ESTATE PUBLIC INTEREST INCORPORATED ASSOCIATION
Member of JAPAN PROPERTY MANAGEMENT ASSOCIATION
Group member of REAL ESTATE FAIR TRADE COUNCIL
(最后更新日期:{date})
2026/01/08
下次更新日期
2026/01/22
合同期
-
0800-111-6663(免费)
来自海外: +81-3-5155-4671





