更新日期
ID :1820093
※咨询时请告知工作人员此处您的ID号码。
1K 高级公寓 租赁物件 東京都 墨田区プレール・ドゥーク錦糸町 0506














租金/初始成本
90,000日元
管理费
15,000 日元
押金
0 日元
礼金
0 日元
物件
房间布局
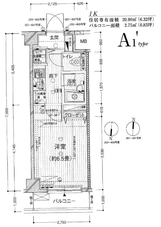
1K
面积
20.9㎡
建筑年月日
2006年4月
建筑物类别
高级公寓
交通
交通
総武本线 錦糸町 步行 8分
总武线 錦糸町 步行 10分
住所
東京都 墨田区 太平2丁目15-5
0800-111-6663(免费)
来自海外: +81-3-5155-4671
详细信息
房租
管理费
90,000 日元
15,000 日元
押金
礼金
0 日元
0 日元
保证金
押金(不退还)
0 日元
- 日元
房间布局
1K
面积
20.9㎡
建筑年月日
2006年4月
楼
5楼 / 7层楼的建筑
朝向
南
建筑物类别
高级公寓
构造
钢筋混凝土
房屋火灾保险
要
可入住时间
即入居可
详细条件
乐器可商谈/宠物可商谈/都市煤气/浴室、卫生间分开/自动锁/壁橱/有空调
备考
-
其他
-
※ 登载内容与现状不符的时候,以现状为准。
位置
住所
東京都 墨田区 太平2丁目15-5
交通
総武本线 錦糸町 步行 8分
总武线 錦糸町 步行 10分
其他
保证公司
必须(保证公司名:株式会社全球信赖网)
保证公司费用:初期保证费 月房租的30%~100%(最低保证费20,000日元~)
+年度保证费(10,000日元)或月度保证费(1,000日元~)
信息提供者
Global Trust Networks Co.,Ltd.
新大久保分公司
〒169 - 0072
東京都新宿区大久保1-15-15 AKIYAMA BLD2楼
Member of THE TOKYO REAL ESTATE PUBLIC INTEREST INCORPORATED ASSOCIATION
Member of JAPAN PROPERTY MANAGEMENT ASSOCIATION
Group member of REAL ESTATE FAIR TRADE COUNCIL
更新日期
2025/11/03
下次更新日期
2025/11/11
合同期
-
0800-111-6663(免费)
来自海外: +81-3-5155-4671

