更新日期
バストイレ別!角部屋!洋室:フローリング、ガスコンロ
ID :1846118
※咨询时请告知工作人员此处您的ID号码。
1K 高级公寓 租赁物件 東京都 練馬区和田ハイツ 201




































租金/初始成本
63,000日元
管理费
4,000 日元
押金
- 日元
礼金
63,000 日元
物件
房间布局
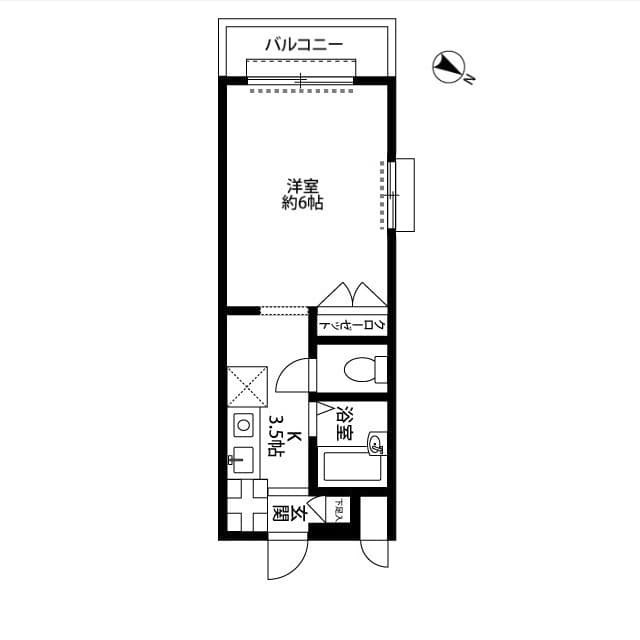
1K
面积
20.09㎡
建筑年月日
1998年3月
建筑物类别
高级公寓
交通
交通
西武池袋線 石神井公園 步行 9分
西武池袋線 練馬高野台 步行 18分
西武池袋線 大泉學園 步行 9分
住所
東京都 練馬区 石神井町2丁目30-10
0800-111-6663(免费)
来自海外: +81-3-5155-4671
详细信息
房租
管理费
63,000 日元
4,000 日元
押金
礼金
- 日元
63,000 日元
保证金
押金(不退还)
- 日元
- 日元
房间布局
1K
面积
20.09㎡
建筑年月日
1998年3月
楼
2楼 / 3层楼的建筑
朝向
西
建筑物类别
高级公寓
构造
重钢架
房屋火灾保险
要
可入住时间
2026-3
详细条件
都市煤气/浴室、卫生间分开/洗衣机放置处(室内)/阳台/地板/附自行车停车场/拐角房间/有空调
备考
-
其他
BBM-NET月額基本使用料無料
※ 登载内容与现状不符的时候,以现状为准。
位置
住所
東京都 練馬区 石神井町2丁目30-10
交通
西武池袋線 石神井公園 步行 9分
西武池袋線 練馬高野台 步行 18分
西武池袋線 大泉學園 步行 9分
其他
保证公司
必须(保证公司名:株式会社全球信赖网)
保证公司费用:初期保证费 月房租的30%~100%(最低保证费20,000日元~)
+年度保证费(10,000日元)或月度保证费(1,000日元~)
信息提供者
Global Trust Networks Co.,Ltd.
新大久保分公司
〒169 - 0072
東京都新宿区大久保1-15-15 AKIYAMA BLD2楼
Member of THE TOKYO REAL ESTATE PUBLIC INTEREST INCORPORATED ASSOCIATION
Member of JAPAN PROPERTY MANAGEMENT ASSOCIATION
Group member of REAL ESTATE FAIR TRADE COUNCIL
更新日期
2025/12/03
下次更新日期
2025/12/11
合同期
-
0800-111-6663(免费)
来自海外: +81-3-5155-4671


