更新日期
●敷0!●駐輪場:有 1住戸1台無料
ID :1847050
※咨询时请告知工作人员此处您的ID号码。
1DK 高级公寓 租赁物件 神奈川県 川崎市川崎区パワーハウスBS 0803




租金/初始成本
84,000日元
管理费
8,000 日元
押金
0 日元
礼金
84,000 日元
物件
房间布局
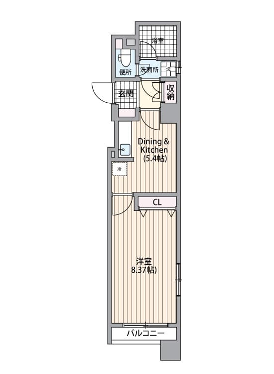
1DK
面积
32.31㎡
建筑年月日
2002年1月
建筑物类别
高级公寓
交通
交通
京滨东北・根岸线 川崎 步行 15分
京急大師線 京急川崎 步行 19分
住所
神奈川県 川崎市川崎区 境町11-21
0800-111-6663(免费)
来自海外: +81-3-5155-4671
详细信息
房租
管理费
84,000 日元
8,000 日元
押金
礼金
0 日元
84,000 日元
保证金
押金(不退还)
- 日元
- 日元
房间布局
1DK
面积
32.31㎡
建筑年月日
2002年1月
楼
8楼 / 10层楼的建筑
朝向
南西
建筑物类别
高级公寓
构造
钢筋混凝土
房屋火灾保险
要
可入住时间
咨询
详细条件
可二人入住/都市煤气/浴室、卫生间分开/洗衣机放置处(室内)/自动锁/电梯/阳台/地板/壁橱
备考
-
其他
●学生可(契約名義人は就職している親族に限る)●法人契約:敷金1ヶ月(保証会社:ジェイリース100%)●解約予告2ヶ月前
※ 登载内容与现状不符的时候,以现状为准。
位置
住所
神奈川県 川崎市川崎区 境町11-21
交通
京滨东北・根岸线 川崎 步行 15分
京急大師線 京急川崎 步行 19分
其他
保证公司
必须(保证公司名:株式会社全球信赖网)
保证公司费用:初期保证费 月房租的30%~100%(最低保证费20,000日元~)
+年度保证费(10,000日元)或月度保证费(1,000日元~)
信息提供者
Global Trust Networks Co.,Ltd.
新大久保分公司
〒169 - 0072
東京都新宿区大久保1-15-15 AKIYAMA BLD2楼
Member of THE TOKYO REAL ESTATE PUBLIC INTEREST INCORPORATED ASSOCIATION
Member of JAPAN PROPERTY MANAGEMENT ASSOCIATION
Group member of REAL ESTATE FAIR TRADE COUNCIL
更新日期
2025/11/18
下次更新日期
2025/11/25
合同期
-
0800-111-6663(免费)
来自海外: +81-3-5155-4671