(最后更新日期:2026年03月15日)
ID :2025231
※咨询时请告知工作人员此处您的ID号码。
1K 高级公寓 租赁物件 東京都 大田区メインステージ大森北 0302
























租金/初始成本
110,000日元
管理费
15,000 日元
押金
0 日元
礼金
55,000 日元
物件
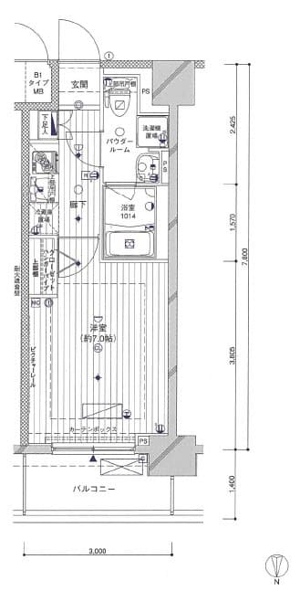
房间布局
1K
面积
23.4㎡
建筑年月日
2009年10月
建筑物类别
高级公寓
交通
交通
京滨东北・根岸线 大森(東京) 步行 10分
京急本線 大森海岸 步行 5分
住所
東京都 大田区 大森北3丁目13-1
0800-111-6663(免费)
来自海外: +81-3-5155-4671
详细信息
房租
管理费
110,000 日元
15,000 日元
押金
礼金
0 日元
55,000 日元
保证金
押金(不退还)
0 日元
- 日元
房间布局
1K
面积
23.4㎡
建筑年月日
2009年10月
楼
3楼 / 11层楼的建筑
朝向
北
建筑物类别
高级公寓
构造
钢筋混凝土
房屋火灾保险
要
可入住时间
咨询
详细条件
宠物可商谈/都市煤气/浴室、卫生间分开/双口以上炉灶/洗衣机放置处(室内)/自动锁/电梯/阳台/智能自助快递柜/附自行车停车场/附摩托车停车场/可视门铃/温水洗净座便器/浴室干燥机/24小时随时丢垃圾/独立洗面台/防盗摄像头/壁橱/鞋柜/有空调
备考
-
其他费用
ハウスクリーニング費用(退去時請求):49500
退去時鍵交換費用(契約時請求):29700
AMLクラブサポート費用(契約時請求):16500
其他
-
※ 登载内容与现状不符的时候,以现状为准。
住所
東京都 大田区 大森北3丁目13-1
交通
京滨东北・根岸线 大森(東京) 步行 10分
京急本線 大森海岸 步行 5分
其他
保证公司
必须(保证公司名:株式会社全球信赖网)
保证公司费用:初期保证费 月房租的30%~100%(最低保证费20,000日元~)
+年度保证费(10,000日元)或月度保证费(1,000日元~)
信息提供者
Global Trust Networks Co.,Ltd.
新大久保分公司
〒169 - 0072
東京都新宿区大久保1-15-15 AKIYAMA BLD2楼
Member of THE TOKYO REAL ESTATE PUBLIC INTEREST INCORPORATED ASSOCIATION
Member of JAPAN PROPERTY MANAGEMENT ASSOCIATION
Group member of REAL ESTATE FAIR TRADE COUNCIL
(最后更新日期:{date})
2026/03/14
下次更新日期
2026/03/21
合同期
-
0800-111-6663(免费)
来自海外: +81-3-5155-4671




