(Last updated: 2026年03月01日)
ID :1185102
*Please give this ID number to our staff when you contact us.
0Others Others For Rent in Kyoto Kyotoshi Nakagyo-ku京都銀行協会(ビル名変更予定) 5F




Rent/Initial cost
5,013,162Yen
Maintenance Fee
0 Yen
Deposit
30,078,972 Yen
Key Money
0 Yen
Property Info
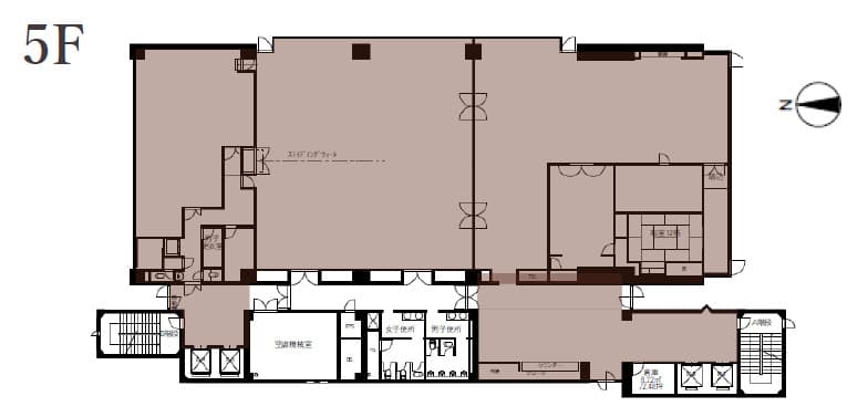
Room Type
Others
Size
837.02㎡
Architectural Date
1977/9/
Building Types
Others
Access
Transportation
Kyoto Subway Tozai Line Kyoto Shiyakusho-mae Walk 5min
Keihan Main Line Sanjo Walk 8min
Address
Kyoto Kyotoshi Nakagyo-ku 木屋町通二条下る一之船入町535-2
0800-111-6663(free)
From Overseas: +81-3-5155-4671
Details
Rent
Maintenance Fee
5,013,162 Yen
0 Yen
Deposit
Key Money
30,078,972 Yen
0 Yen
Security Deposit
Non-Refundable Security Deposit
- Yen
- Yen
Room Type
Others
Size
837.02㎡
Architectural Date
1977/9/
Floor
5Floor / 8Story building
Direction
-
Building Types
Others
Structure type
steel-bone
Home Insurance
Required
Occupancy Date
Consultation
Preferences
Elevator/Corner Room
Note
-
Other expenses
-
Others
-
※ If the posted information is different from the current status,we give priority to the current status.
Location
Address
Kyoto Kyotoshi Nakagyo-ku 木屋町通二条下る一之船入町535-2
Transportation
Kyoto Subway Tozai Line Kyoto Shiyakusho-mae Walk 5min
Keihan Main Line Sanjo Walk 8min
Others
Guarantor Company
Subscription required ( Guarantee Company name: Global Trust Networks Co. Ltd.)
Guarantee Company Usage charge: Initial Guarantee fee 30%~100% of the monthly total rent (minimum guarantee fee 20,000 yen ~)
+ Annual guarantee fee (10,000 yen) or Monthly guarantee fee (1,000 yen~)
Information provided by
Global Trust Networks Co., Ltd.
Shin-Okubo Branch
AKIYAMA BLD. 2nd Floor
1-15-15 Okubo, Shinjuku-ku, Tokyo 169-0072 Japan
Member of THE TOKYO REAL ESTATE PUBLIC INTEREST INCORPORATED ASSOCIATION
Member of JAPAN PROPERTY MANAGEMENT ASSOCIATION
Group member of REAL ESTATE FAIR TRADE COUNCIL
(Last updated: {date})
2026/02/21
Next update date
2026/03/01
Contract Period
-
0800-111-6663(free)
From Overseas: +81-3-5155-4671