(Last updated: 2026年02月21日)
ID :1196912
*Please give this ID number to our staff when you contact us.
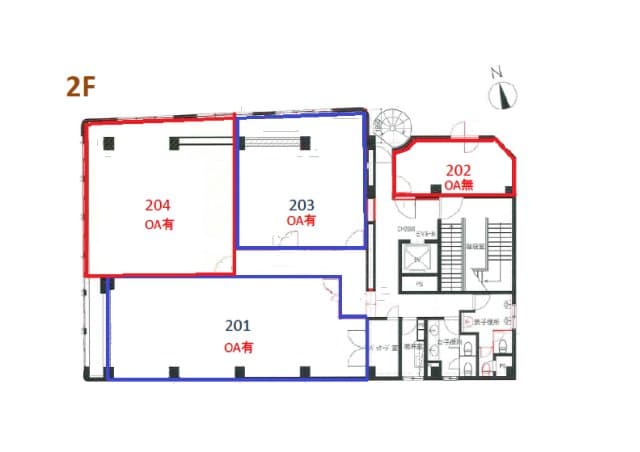
0Others Others For Rent in Tochigi Utsunomiya-shiマロニエ宇都宮(旧大和証券宇都宮ビル) 202








Rent/Initial cost
81,840Yen
Maintenance Fee
0 Yen
Deposit
245,520 Yen
Key Money
0 Yen
Property Info
Room Type
Others
Size
20.5㎡
Architectural Date
1972/5/
Building Types
Others
Access
Transportation
Tobu Utsunomiya Line TobuUtsunomiya Walk 7min
Tohoku Line Utsunomiya Bus 10min
Tohoku Line Utsunomiya Walk 2min
Address
Tochigi Utsunomiya-shi 本町13-18
0800-111-6663(free)
From Overseas: +81-3-5155-4671
Details
Rent
Maintenance Fee
81,840 Yen
0 Yen
Deposit
Key Money
245,520 Yen
0 Yen
Security Deposit
Non-Refundable Security Deposit
- Yen
- Yen
Room Type
Others
Size
20.5㎡
Architectural Date
1972/5/
Floor
2Floor / 5Story building
Direction
-
Building Types
Others
Structure type
steel-line
Home Insurance
Required
Occupancy Date
2024-10-Middle
Preferences
Elevator
Note
-
Other expenses
-
Others
-
※ If the posted information is different from the current status,we give priority to the current status.
Location
Address
Tochigi Utsunomiya-shi 本町13-18
Transportation
Tobu Utsunomiya Line TobuUtsunomiya Walk 7min
Tohoku Line Utsunomiya Bus 10min
Tohoku Line Utsunomiya Walk 2min
Others
Guarantor Company
Subscription required ( Guarantee Company name: Global Trust Networks Co. Ltd.)
Guarantee Company Usage charge: Initial Guarantee fee 30%~100% of the monthly total rent (minimum guarantee fee 20,000 yen ~)
+ Annual guarantee fee (10,000 yen) or Monthly guarantee fee (1,000 yen~)
Information provided by
Global Trust Networks Co., Ltd.
Shin-Okubo Branch
AKIYAMA BLD. 2nd Floor
1-15-15 Okubo, Shinjuku-ku, Tokyo 169-0072 Japan
Member of THE TOKYO REAL ESTATE PUBLIC INTEREST INCORPORATED ASSOCIATION
Member of JAPAN PROPERTY MANAGEMENT ASSOCIATION
Group member of REAL ESTATE FAIR TRADE COUNCIL
(Last updated: {date})
2026/02/13
Next update date
2026/02/21
Contract Period
-
0800-111-6663(free)
From Overseas: +81-3-5155-4671


