Update date
新築分譲賃貸マンションペット飼育可能物件ネット使用料込物件
ID :1745792
*Please give this ID number to our staff when you contact us.
1LDK Apartment For Rent in Tokyo Taito-kuメインステージ入谷V 0605














Rent/Initial cost
168,500Yen
Maintenance Fee
20,000 Yen
Deposit
0 Yen
Key Money
0 Yen
Property Info
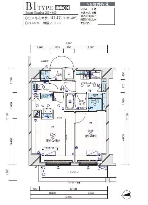
Room Type
1LDK
Size
41.47㎡
Architectural Date
2025/7/
Building Types
Apartment
Access
Transportation
Hibiya Line Iriya Walk 10min
Tsukuba Express Asakusa Walk 13min
Address
Tokyo Taito-ku 千束3丁目20-17
0800-111-6663(free)
From Overseas: +81-3-5155-4671
Details
Rent
Maintenance Fee
168,500 Yen
20,000 Yen
Deposit
Key Money
0 Yen
0 Yen
Security Deposit
Non-Refundable Security Deposit
0 Yen
- Yen
Room Type
1LDK
Size
41.47㎡
Architectural Date
2025/7/
Floor
6Floor / 10Story building
Direction
west
Building Types
Apartment
Structure type
steel-line
Home Insurance
Required
Occupancy Date
Immediately
Preferences
Pet Negotiable/City Gas/Separate Bath and Toilet/More Than Double Burners/Air Conditioner/Auto-lock/Elevator/Balcony/Delivery Box/TV Doorphone/Washlet Toilet/24 Hour Garbage Dump/Security Camera/Free Internet/Closet
Note
-
Others
ネット込(シーファイブ)ペット可(敷1)保証会社必須(セゾン)引越し業者指定退去時要清掃代解約予告50日前電力業者指定有
※ If the posted information is different from the current status,we give priority to the current status.
Address
Tokyo Taito-ku 千束3丁目20-17
Transportation
Hibiya Line Iriya Walk 10min
Tsukuba Express Asakusa Walk 13min
Others
Guarantor Company
Subscription required ( Guarantee Company name: Global Trust Networks Co. Ltd.)
Guarantee Company Usage charge: Initial Guarantee fee 30%~100% of the monthly total rent (minimum guarantee fee 20,000 yen ~)
+ Annual guarantee fee (10,000 yen) or Monthly guarantee fee (1,000 yen~)
Information provided by
Global Trust Networks Co., Ltd.
Shin-Okubo Branch
AKIYAMA BLD. 2nd Floor
1-15-15 Okubo, Shinjuku-ku, Tokyo 169-0072 Japan
Member of THE TOKYO REAL ESTATE PUBLIC INTEREST INCORPORATED ASSOCIATION
Member of JAPAN PROPERTY MANAGEMENT ASSOCIATION
Group member of REAL ESTATE FAIR TRADE COUNCIL
Update date
2025/09/22
Next update date
2025/09/29
Contract Period
-
Recommended listings

168,500Yen(Maintenance Fee 20,000 Yen)
メインステージ入谷VTaito-ku 千束3丁目20-17
Deposit 0 Yen
Key Money 0 Yen

164,000Yen(Maintenance Fee 20,000 Yen)
ベルグレード浅草DUETaito-ku 浅草5丁目36-9
Deposit 0 Yen
Key Money 0 Yen

165,500Yen(Maintenance Fee 20,000 Yen)
ベルグレード浅草DUETaito-ku 浅草5丁目36-9
Deposit 0 Yen
Key Money 0 Yen

165,000Yen(Maintenance Fee 20,000 Yen)
ベルグレード浅草DUETaito-ku 浅草5丁目36-9
Deposit 0 Yen
Key Money 0 Yen

165,000Yen(Maintenance Fee 10,000 Yen)
クレアトーレ日暮里Arakawa-ku 東日暮里4丁目10番10号
Deposit 165,000 Yen
Key Money 165,000 Yen

169,000Yen(Maintenance Fee 20,000 Yen)
メインステージ入谷VTaito-ku 千束3丁目20-17
Deposit 0 Yen
Key Money 0 Yen

169,000Yen(Maintenance Fee 20,000 Yen)
メインステージ入谷VTaito-ku 千束3丁目20-17
Deposit 0 Yen
Key Money 0 Yen

166,500Yen(Maintenance Fee 20,000 Yen)
ベルグレード浅草DUETaito-ku 浅草5丁目36-9
Deposit 0 Yen
Key Money 0 Yen

169,500Yen(Maintenance Fee 20,000 Yen)
メインステージ入谷VTaito-ku 千束3丁目20-17
Deposit 0 Yen
Key Money 0 Yen

169,500Yen(Maintenance Fee 20,000 Yen)
メインステージ入谷VTaito-ku 千束3丁目20-17
Deposit 0 Yen
Key Money 0 Yen
0800-111-6663(free)
From Overseas: +81-3-5155-4671