Update date
保証金償却・付帯費用がございますので必ずお問合せください。
ID :1830986
*Please give this ID number to our staff when you contact us.
1K Apartment For Rent in Tokyo Nerima-kuルーブル東武練馬 0207










































Rent/Initial cost
75,000Yen
Maintenance Fee
15,000 Yen
Deposit
- Yen
Key Money
- Yen
Property Info
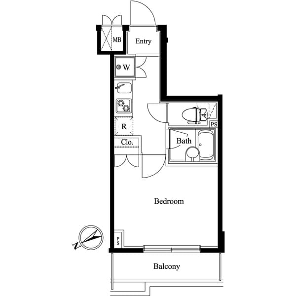
Room Type
1K
Size
20.7㎡
Architectural Date
2011/12/
Building Types
Apartment
Access
Transportation
Tobu Tojo Line Tobu Nerima Walk 9min
Address
Tokyo Nerima-ku 北町1丁目22-11
0800-111-6663(free)
From Overseas: +81-3-5155-4671
Details
Rent
Maintenance Fee
75,000 Yen
15,000 Yen
Deposit
Key Money
- Yen
- Yen
Security Deposit
Non-Refundable Security Deposit
- Yen
- Yen
Room Type
1K
Size
20.7㎡
Architectural Date
2011/12/
Floor
2Floor / 6Story building
Direction
west
Building Types
Apartment
Structure type
steel-line
Home Insurance
Required
Occupancy Date
2026-1
Preferences
Two People Permitted Per Room/City Gas/Separate Bath and Toilet/More Than Double Burners/System Kitchen/Laundry Area (indoor)/CS Antenna/BS Antenna/Auto-lock/Elevator/Balcony/Flooring/Delivery Box/Bicycle-parking Lot Available/Washlet Toilet/Bathroom Dryer/Security Camera/Closet/Air Conditioner
Note
-
Others
-
※ If the posted information is different from the current status,we give priority to the current status.
Location
Address
Tokyo Nerima-ku 北町1丁目22-11
Transportation
Tobu Tojo Line Tobu Nerima Walk 9min
Others
Guarantor Company
Subscription required ( Guarantee Company name: Global Trust Networks Co. Ltd.)
Guarantee Company Usage charge: Initial Guarantee fee 30%~100% of the monthly total rent (minimum guarantee fee 20,000 yen ~)
+ Annual guarantee fee (10,000 yen) or Monthly guarantee fee (1,000 yen~)
Information provided by
Global Trust Networks Co., Ltd.
Shin-Okubo Branch
AKIYAMA BLD. 2nd Floor
1-15-15 Okubo, Shinjuku-ku, Tokyo 169-0072 Japan
Member of THE TOKYO REAL ESTATE PUBLIC INTEREST INCORPORATED ASSOCIATION
Member of JAPAN PROPERTY MANAGEMENT ASSOCIATION
Group member of REAL ESTATE FAIR TRADE COUNCIL
Update date
2025/11/15
Next update date
2025/11/23
Contract Period
-
0800-111-6663(free)
From Overseas: +81-3-5155-4671




