(Last updated: 2026年01月10日)
ID :1923095
*Please give this ID number to our staff when you contact us.
1K Apartment For Rent in Tokyo Tachikawashiメインステージ立川II 0501




































Rent/Initial cost
82,500Yen
Maintenance Fee
20,000 Yen
Deposit
0 Yen
Key Money
82,500 Yen
Property Info
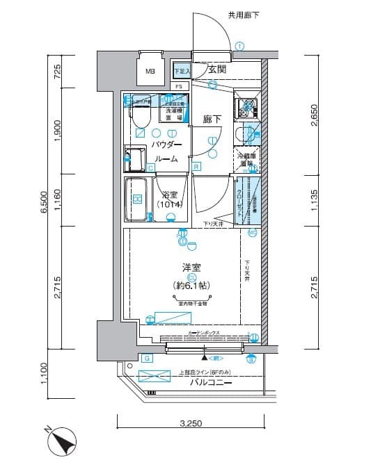
Room Type
1K
Size
21.12㎡
Architectural Date
2020/4/
Building Types
Apartment
Access
Transportation
Chuo Main Line Tachikawa Walk 10min
Address
Tokyo Tachikawashi 高松町3丁目21-24
0800-111-6663(free)
From Overseas: +81-3-5155-4671
Details
Rent
Maintenance Fee
82,500 Yen
20,000 Yen
Deposit
Key Money
0 Yen
82,500 Yen
Security Deposit
Non-Refundable Security Deposit
0 Yen
- Yen
Room Type
1K
Size
21.12㎡
Architectural Date
2020/4/
Floor
5Floor / 8Story building
Direction
south-west
Building Types
Apartment
Structure type
steel-line
Home Insurance
Required
Occupancy Date
Consultation
Preferences
Pet Negotiable/City Gas/Separate Bath and Toilet/More Than Double Burners/Laundry Area (indoor)/Auto-lock/Elevator/Balcony/Delivery Box/Bicycle-parking Lot Available/Corner Room/TV Doorphone/Washlet Toilet/Bathroom Dryer/24 Hour Garbage Dump/Security Camera/Closet/Shoes Closet/Air Conditioner
Note
-
Others
-
※ If the posted information is different from the current status,we give priority to the current status.
Location
Address
Tokyo Tachikawashi 高松町3丁目21-24
Transportation
Chuo Main Line Tachikawa Walk 10min
Others
Guarantor Company
Subscription required ( Guarantee Company name: Global Trust Networks Co. Ltd.)
Guarantee Company Usage charge: Initial Guarantee fee 30%~100% of the monthly total rent (minimum guarantee fee 20,000 yen ~)
+ Annual guarantee fee (10,000 yen) or Monthly guarantee fee (1,000 yen~)
Information provided by
Global Trust Networks Co., Ltd.
Shin-Okubo Branch
AKIYAMA BLD. 2nd Floor
1-15-15 Okubo, Shinjuku-ku, Tokyo 169-0072 Japan
Member of THE TOKYO REAL ESTATE PUBLIC INTEREST INCORPORATED ASSOCIATION
Member of JAPAN PROPERTY MANAGEMENT ASSOCIATION
Group member of REAL ESTATE FAIR TRADE COUNCIL
(Last updated: {date})
2026/01/08
Next update date
2026/01/16
Contract Period
-
0800-111-6663(free)
From Overseas: +81-3-5155-4671







