(Last updated: 2026年01月27日)
★インターネット無料★オートロック・TVモニター付きインターホン★ロフト有★コンビニスーパー徒歩圏内
ID :1940197
*Please give this ID number to our staff when you contact us.
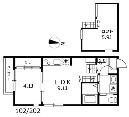
1LDK Apartment(wooden) For Rent in Aichi Nagoya-shi Chikusa-kuハーモニーテラス茶屋坂通 202








Rent/Initial cost
69,000Yen
Maintenance Fee
4,000 Yen
Deposit
0 Yen
Key Money
69,000 Yen
Property Info
Room Type
1LDK
Size
32.76㎡
Architectural Date
2017/8/
Building Types
Apartment(wooden)
Access
Transportation
Nagoya Municipal Subway Meijo Line Chayagasaka Walk 9min
Nagoya Municipal Subway Meijo Line sunadabashi Walk 10min
Address
Aichi Nagoya-shi Chikusa-ku 茶屋坂通1丁目9
0800-111-6663(free)
From Overseas: +81-3-5155-4671
Details
Rent
Maintenance Fee
69,000 Yen
4,000 Yen
Deposit
Key Money
0 Yen
69,000 Yen
Security Deposit
Non-Refundable Security Deposit
0 Yen
- Yen
Room Type
1LDK
Size
32.76㎡
Architectural Date
2017/8/
Floor
2Floor / 2Story building
Direction
south
Building Types
Apartment(wooden)
Structure type
wood
Home Insurance
Required
Occupancy Date
Consultation
Preferences
Two People Permitted Per Room/Student Welcomed/Propane Gas/Separate Bath and Toilet/Shower/More Than Double Burners/Reheating/With Loft/Laundry Area (indoor)/Auto-lock/Balcony/Flooring/Corner Room/TV Doorphone/Washlet Toilet/Bathroom Dryer/Individual Washstand/Free Internet/Closet/Shoes Closet/Air Conditioner
Note
-
Others
■更新事務手数料:16500円(税込) ■エアコン2台目以降は退去時に22000円(税込)/台が必要となります。 ■短期解約違約金:1年未満2カ月 ■解約予告:2カ月前 (大手法人に限り礼金1ヶ月プラスで解約予告:1ヶ月に変更可) ■プレミアデス代の中に登録料6600円(税込)を含みます。 ■インターネット無料 ■本物件は電子契約となります。
※ If the posted information is different from the current status,we give priority to the current status.
Location
Address
Aichi Nagoya-shi Chikusa-ku 茶屋坂通1丁目9
Transportation
Nagoya Municipal Subway Meijo Line Chayagasaka Walk 9min
Nagoya Municipal Subway Meijo Line sunadabashi Walk 10min
Others
Guarantor Company
Subscription required ( Guarantee Company name: Global Trust Networks Co. Ltd.)
Guarantee Company Usage charge: Initial Guarantee fee 30%~100% of the monthly total rent (minimum guarantee fee 20,000 yen ~)
+ Annual guarantee fee (10,000 yen) or Monthly guarantee fee (1,000 yen~)
Information provided by
Global Trust Networks Co., Ltd.
Shin-Okubo Branch
AKIYAMA BLD. 2nd Floor
1-15-15 Okubo, Shinjuku-ku, Tokyo 169-0072 Japan
Member of THE TOKYO REAL ESTATE PUBLIC INTEREST INCORPORATED ASSOCIATION
Member of JAPAN PROPERTY MANAGEMENT ASSOCIATION
Group member of REAL ESTATE FAIR TRADE COUNCIL
(Last updated: {date})
2026/01/26
Next update date
2026/02/09
Contract Period
-
0800-111-6663(free)
From Overseas: +81-3-5155-4671