(Last updated: 2026年02月05日)
墨田区エリアでの住まいなら、住み心地も快適な「DIPS墨田RIVERSIDE」はいかがでしょうか。お
ID :1963300
*Please give this ID number to our staff when you contact us.
1LDK Apartment For Rent in Tokyo Sumida-kuDIPS墨田RIVERSIDE 203






































Rent/Initial cost
154,000Yen
Maintenance Fee
15,000 Yen
Deposit
0 Yen
Key Money
154,000 Yen
Property Info
Room Type
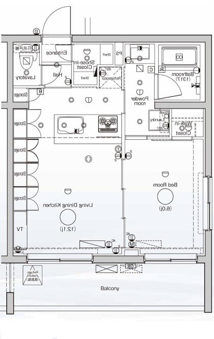
1LDK
Size
42.36㎡
Architectural Date
2016/12/
Building Types
Apartment
Access
Transportation
Keisei Oshiage Line Yahiro Walk 7min
Keisei Oshiage Line Yotsugi Walk 14min
Address
Tokyo Sumida-ku 東墨田2丁目27番2号
0800-111-6663(free)
From Overseas: +81-3-5155-4671
Details
Rent
Maintenance Fee
154,000 Yen
15,000 Yen
Deposit
Key Money
0 Yen
154,000 Yen
Security Deposit
Non-Refundable Security Deposit
154,000 Yen
0 Yen
Room Type
1LDK
Size
42.36㎡
Architectural Date
2016/12/
Floor
2Floor / 5Story building
Direction
west
Building Types
Apartment
Structure type
steel-line
Home Insurance
Required
Occupancy Date
Consultation
Preferences
Two People Permitted Per Room/Pet Friendly/City Gas/Separate Bath and Toilet/More Than Double Burners/Reheating/Laundry Area (indoor)/Auto-lock/Elevator/Flooring/Delivery Box/Bicycle-parking Lot Available/Motorcycle-parking Lot Available/Corner Room/TV Doorphone/Washlet Toilet/Bathroom Dryer/24 Hour Garbage Dump/Individual Washstand/Closet/Air Conditioner
Note
-
Others
■インターネット「Ucom光」(別途契約) ■保証会社必須 ■解約2ヶ月前予告 ■短期解約違約金有 ■ペット飼育の場合保証金1ヶ月追加 ■入居審査後、インターネット・電気・ガス・水道のご利用に関し、業者よりお電話させて頂きます。 ■駐輪場・駐車場等の確認は共用部管理会社へお問い合わせください。 ■居住中・完成前の物件は全て先行契約になります。 ■共用部管理会社:日本コミュニティー 03-5366-1222
※ If the posted information is different from the current status,we give priority to the current status.
Location
Address
Tokyo Sumida-ku 東墨田2丁目27番2号
Transportation
Keisei Oshiage Line Yahiro Walk 7min
Keisei Oshiage Line Yotsugi Walk 14min
Others
Guarantor Company
Subscription required ( Guarantee Company name: Global Trust Networks Co. Ltd.)
Guarantee Company Usage charge: Initial Guarantee fee 30%~100% of the monthly total rent (minimum guarantee fee 20,000 yen ~)
+ Annual guarantee fee (10,000 yen) or Monthly guarantee fee (1,000 yen~)
Information provided by
Global Trust Networks Co., Ltd.
Shin-Okubo Branch
AKIYAMA BLD. 2nd Floor
1-15-15 Okubo, Shinjuku-ku, Tokyo 169-0072 Japan
Member of THE TOKYO REAL ESTATE PUBLIC INTEREST INCORPORATED ASSOCIATION
Member of JAPAN PROPERTY MANAGEMENT ASSOCIATION
Group member of REAL ESTATE FAIR TRADE COUNCIL
(Last updated: {date})
2026/02/04
Next update date
2026/02/18
Contract Period
-
0800-111-6663(free)
From Overseas: +81-3-5155-4671