(Last updated: 2026年04月02日)
ID :2047003
*Please give this ID number to our staff when you contact us.
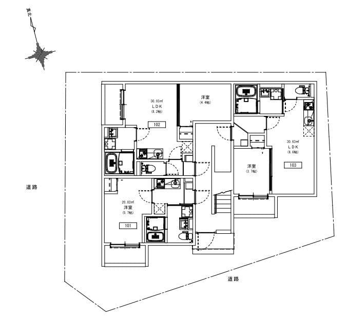
1K Apartment(wooden) For Rent in Hyogo Amagasakishiユーヴェ常光寺 101
























Rent/Initial cost
56,000Yen
Maintenance Fee
3,000 Yen
Deposit
0 Yen
Key Money
0 Yen
Property Info
Room Type
1K
Size
20.02㎡
Architectural Date
2018/12/
Building Types
Apartment(wooden)
Access
Transportation
Tokaido Line Amagasaki Walk12min
Hanshin Main Line Kuise Walk15min
Address
Hyogo Amagasakishi 常光寺1丁目12番13号
0800-111-6663(free)
From Overseas: +81-3-5155-4671
Details
Rent
Maintenance Fee
56,000 Yen
3,000 Yen
Deposit
Key Money
0 Yen
0 Yen
Security Deposit
Non-Refundable Security Deposit
- Yen
- Yen
Room Type
1K
Size
20.02㎡
Architectural Date
2018/12/
Floor
1Floor / 3Story building
Direction
south
Building Types
Apartment(wooden)
Structure type
wood
Home Insurance
Required
Occupancy Date
2026-4-Late
Preferences
Propane Gas/Separate Bath and Toilet/Shower/More Than Double Burners/Reheating/Laundry Area (indoor)/Auto-lock/Balcony/Flooring/Internet Access Available (optical fiber)/Corner Room/TV Doorphone/Washlet Toilet/Design House/Bathroom Dryer/Individual Washstand/Free Internet/Closet/Shoes Closet/Air Conditioner
Note
-
Other expenses
町内会費:220
入居者アプリ設定費:22000
ルムサポ:2700
Others
-
※ If the posted information is different from the current status,we give priority to the current status.
Address
Hyogo Amagasakishi 常光寺1丁目12番13号
Transportation
Tokaido Line Amagasaki Walk 12min
Hanshin Main Line Kuise Walk 15min
Others
Guarantor Company
Subscription required ( Guarantee Company name: Global Trust Networks Co. Ltd.)
Guarantee Company Usage charge: Initial Guarantee fee 30%~100% of the monthly total rent (minimum guarantee fee 20,000 yen ~)
+ Annual guarantee fee (10,000 yen) or Monthly guarantee fee (1,000 yen~)
Information provided by
Global Trust Networks Co., Ltd.
Shin-Okubo Branch
AKIYAMA BLD. 2nd Floor
1-15-15 Okubo, Shinjuku-ku, Tokyo 169-0072 Japan
Member of THE TOKYO REAL ESTATE PUBLIC INTEREST INCORPORATED ASSOCIATION
Member of JAPAN PROPERTY MANAGEMENT ASSOCIATION
Group member of REAL ESTATE FAIR TRADE COUNCIL
Last updated
2026/04/02
Next update date
2026/04/09
Contract Period
-
0800-111-6663(free)
From Overseas: +81-3-5155-4671
