(마지막 업데이트: 2026年02月26日)
ID :1094880
※ 문의시 제품의 ID번호를 직원에게 알려 주시기 바랍니다.
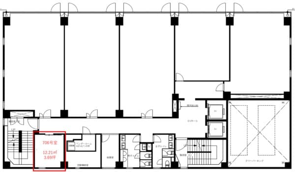
0그 외 그 외 임대 주택 오사카부 사카이시 사카이쿠セントラルフォート堺ビル 706












임대료 · 초기 비용
60,500엔
관리비용
0 엔
시키킹
181,500 엔
레이킹
0 엔
물건명
방구조
그 외
면적
12.21㎡
건축 연월일
1989년2월
건물종별
그 외
접근
노선
한카이 트램 한카이 선 테라지쵸 도보 3분
한카이 트램 한카이 선 슈쿠인 도보 7분
주소로
오사카부 사카이시 사카이쿠 新在家町東1丁1-28
0800-111-6663(무료)
해외에서: +81-3-5155-4671
상세정보
임대료
관리비용
60,500 엔
0 엔
시키킹
레이킹
181,500 엔
0 엔
보증금
상각금
- 엔
- 엔
방구조
그 외
면적
12.21㎡
건축 연월일
1989년2월
층
7층 / 7층 건물
방향
-
건물종별
그 외
구조
철골 철근 콘크리트조
주택보험
필요함
입주 가능한 날
즉입주 가능
세부 조건
도시가스/엘리베이터/내진 구조/쓰레기처리 24시간OK
추기
-
기타 비용
-
그 외
水道料(100円/坪)405円(月額) 近隣に多数駐車場取れます!自走式駐車場(別所有者様保有)もあり、物件の機械式駐車場に入らない車も駐車可能です。
※ 게재되어있는 정보와 현황이 다른 경우에는 현상을 우선시 합니다.
위치
주소로
오사카부 사카이시 사카이쿠 新在家町東1丁1-28
노선
한카이 트램 한카이 선 테라지쵸 도보 3분
한카이 트램 한카이 선 슈쿠인 도보 7분
그 외
보증회사
가입 필수(보증회사 :주식회사 글로벌 트러스트 네트웍스)
보증회사 이용료:첫 보증료 월세의 30%~100%(최저 보증료 20,000円~)
+ 연간보증료(10,000円)혹은 매월 보증료(1,000円~)
정보 출처
주식회사 글로벌 트러스트 네트웍스
신오쿠보점
〒169-0072
도쿄도 신주쿠구 오쿠보 1-15-15 AKIYAMA BLD2층
Member of THE TOKYO REAL ESTATE PUBLIC INTEREST INCORPORATED ASSOCIATION
Member of JAPAN PROPERTY MANAGEMENT ASSOCIATION
Group member of REAL ESTATE FAIR TRADE COUNCIL
(마지막 업데이트: {date})
2026/02/24
다음 업데이트
2026/03/04
계약기간
-
0800-111-6663(무료)
해외에서: +81-3-5155-4671
