(마지막 업데이트: 2026年02月11日)
ID :1548489
※ 문의시 제품의 ID번호를 직원에게 알려 주시기 바랍니다.
1R 맨션 임대 주택 아이치현 나고야시 니시구LiVEMAX MOON 902














임대료 · 초기 비용
68,000엔
관리비용
11,000 엔
시키킹
0 엔
레이킹
68,000 엔
물건명
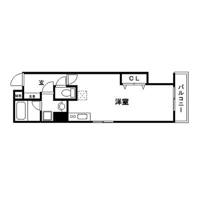
방구조
1R
면적
36.28㎡
건축 연월일
2006년1월
건물종별
맨션
접근
노선
나고야 시영 지하철 쓰루마이 선 Sengencho 도보 2분
토카이도 선 Nagoya 도보 20분
주소로
아이치현 나고야시 니시구 新道1丁目3-8
0800-111-6663(무료)
해외에서: +81-3-5155-4671
상세정보
임대료
관리비용
68,000 엔
11,000 엔
시키킹
레이킹
0 엔
68,000 엔
보증금
상각금
- 엔
- 엔
방구조
1R
면적
36.28㎡
건축 연월일
2006년1월
층
9층 / 9층 건물
방향
남
건물종별
맨션
구조
철근 콘크리트조
주택보험
필요함
입주 가능한 날
즉입주 가능
세부 조건
2인 입주가능/정기차가권/가구, 가전
추기
-
기타 비용
事務手数料:22000
退去時精算手数料:5500
그 외
町会費300円(月額) リブクラブ2200円(月額) SBI少額短期保険800円(月額) ■賃料 家具なし:63000円 家具あり:68000円■鍵交換代16500円■室内清掃費55000円■事務手数料22000円■退去時精算手数料5500円(最終請求時)■町会費300円/月■リブクラブ2200円/月■SBI少額短期保険800円/月■指定賃貸保証加入(総賃料100%)■賃料等引き落とし料330円/月■短期解約違約金:賃料1ヶ月分(1年未満)■民泊・簡易宿泊による利用及
※ 게재되어있는 정보와 현황이 다른 경우에는 현상을 우선시 합니다.
위치
주소로
아이치현 나고야시 니시구 新道1丁目3-8
노선
나고야 시영 지하철 쓰루마이 선 Sengencho 도보 2분
토카이도 선 Nagoya 도보 20분
그 외
보증회사
가입 필수(보증회사 :주식회사 글로벌 트러스트 네트웍스)
보증회사 이용료:첫 보증료 월세의 30%~100%(최저 보증료 20,000円~)
+ 연간보증료(10,000円)혹은 매월 보증료(1,000円~)
정보 출처
주식회사 글로벌 트러스트 네트웍스
신오쿠보점
〒169-0072
도쿄도 신주쿠구 오쿠보 1-15-15 AKIYAMA BLD2층
Member of THE TOKYO REAL ESTATE PUBLIC INTEREST INCORPORATED ASSOCIATION
Member of JAPAN PROPERTY MANAGEMENT ASSOCIATION
Group member of REAL ESTATE FAIR TRADE COUNCIL
(마지막 업데이트: {date})
2026/02/11
다음 업데이트
2026/02/18
계약기간
정기차계약(갱신불가) 12개월
0800-111-6663(무료)
해외에서: +81-3-5155-4671

