(마지막 업데이트: 2026年01月11日)
ID :1922174
※ 문의시 제품의 ID번호를 직원에게 알려 주시기 바랍니다.
3LDK 아파트 임대 주택 오사카부 히라카타시サンビレッジ桜丘 B 102号室




임대료 · 초기 비용
80,000엔
관리비용
0 엔
시키킹
0 엔
레이킹
160,000 엔
물건명
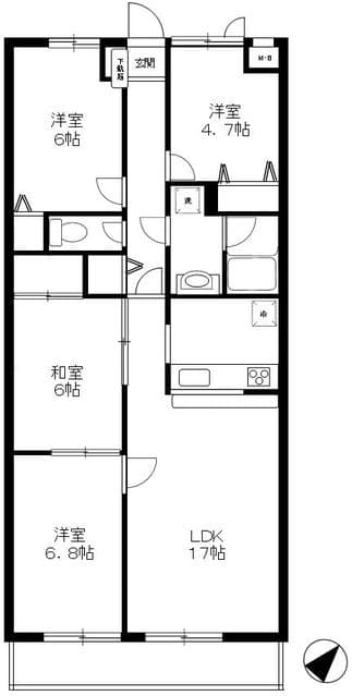
방구조
3LDK
면적
81.11㎡
건축 연월일
1992년10월
건물종별
아파트
접근
노선
주소로
오사카부 히라카타시 池之宮2丁目18-22(B102)・23(B101)
0800-111-6663(무료)
해외에서: +81-3-5155-4671
상세정보
임대료
관리비용
80,000 엔
0 엔
시키킹
레이킹
0 엔
160,000 엔
보증금
상각금
- 엔
- 엔
방구조
3LDK
면적
81.11㎡
건축 연월일
1992년10월
층
1층 / 2층 건물
방향
-
건물종별
아파트
구조
경철골조
주택보험
필요함
입주 가능한 날
상담
세부 조건
2인 입주가능/펫 대응/펫 상담가능/도시가스/욕실・화장실 분리/스토브 2구 이상/세탁기 놓는 곳(실내)/전용 정원/플로어링/TV도어 폰/독립세면대/슈즈 인 클로젯
추기
-
그 외
現況:改装前
※ 게재되어있는 정보와 현황이 다른 경우에는 현상을 우선시 합니다.
위치
주소로
오사카부 히라카타시 池之宮2丁目18-22(B102)・23(B101)
노선
-
그 외
보증회사
가입 필수(보증회사 :주식회사 글로벌 트러스트 네트웍스)
보증회사 이용료:첫 보증료 월세의 30%~100%(최저 보증료 20,000円~)
+ 연간보증료(10,000円)혹은 매월 보증료(1,000円~)
정보 출처
주식회사 글로벌 트러스트 네트웍스
신오쿠보점
〒169-0072
도쿄도 신주쿠구 오쿠보 1-15-15 AKIYAMA BLD2층
Member of THE TOKYO REAL ESTATE PUBLIC INTEREST INCORPORATED ASSOCIATION
Member of JAPAN PROPERTY MANAGEMENT ASSOCIATION
Group member of REAL ESTATE FAIR TRADE COUNCIL
(마지막 업데이트: {date})
2026/01/11
다음 업데이트
2026/01/18
계약기간
-
0800-111-6663(무료)
해외에서: +81-3-5155-4671







