(마지막 업데이트: 2026年02月25日)
ID :1940484
※ 문의시 제품의 ID번호를 직원에게 알려 주시기 바랍니다.
1K 맨션 임대 주택 아이치현 나고야시 나카가와구CREST TAPP金山 204










































임대료 · 초기 비용
64,200엔
관리비용
20,000 엔
시키킹
0 엔
레이킹
0 엔
물건명
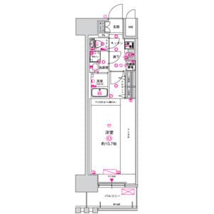
방구조
1K
면적
29.97㎡
건축 연월일
2025년8월
건물종별
맨션
접근
노선
나고야 시영 지하철 메이조 선 Kanayama 도보 9분
토카이도 선 Kanayama 도보 9분
주소로
아이치현 나고야시 나카가와구 愛知県名古屋市中川区八熊1丁目5-10
0800-111-6663(무료)
해외에서: +81-3-5155-4671
상세정보
임대료
관리비용
64,200 엔
20,000 엔
시키킹
레이킹
0 엔
0 엔
보증금
상각금
0 엔
- 엔
방구조
1K
면적
29.97㎡
건축 연월일
2025년8월
층
2층 / 15층 건물
방향
남
건물종별
맨션
구조
철근 콘크리트조
주택보험
필요함
입주 가능한 날
즉입주 가능
세부 조건
펫 상담가능/도시가스/욕실・화장실 분리/스토브 2구 이상/세탁기 놓는 곳 있음/오토락/엘리베이터/발코니/택배박스/TV도어 폰/온수세정변좌/욕실건조기/방범카메라/인터넷 사용료 무료/에어컨
추기
-
기타 비용
契約事務手数料(契約時):11000
更新事務手数料(更新時):11000
エアコンクリーニング(退去時):16500
그 외
ペット飼育時、1匹につき敷金1ヶ月(小型犬・猫 合計2匹まで) ★キャンペーン★ 当月分日割り・翌月分の家賃+管理費無料!!(24H駆けつけサービスは対象外) 駐輪場・駐車場等の空き確認や金額については「募集図面」から建物管理会社様へご連絡お願いいたします。 ※内覧は103.206.307.505.702.901.1104.1503号室でお願いします ※室内写真は同タイプの別部屋です
※ 게재되어있는 정보와 현황이 다른 경우에는 현상을 우선시 합니다.
위치
주소로
아이치현 나고야시 나카가와구 愛知県名古屋市中川区八熊1丁目5-10
노선
나고야 시영 지하철 메이조 선 Kanayama 도보 9분
토카이도 선 Kanayama 도보 9분
그 외
보증회사
가입 필수(보증회사 :주식회사 글로벌 트러스트 네트웍스)
보증회사 이용료:첫 보증료 월세의 30%~100%(최저 보증료 20,000円~)
+ 연간보증료(10,000円)혹은 매월 보증료(1,000円~)
정보 출처
주식회사 글로벌 트러스트 네트웍스
신오쿠보점
〒169-0072
도쿄도 신주쿠구 오쿠보 1-15-15 AKIYAMA BLD2층
Member of THE TOKYO REAL ESTATE PUBLIC INTEREST INCORPORATED ASSOCIATION
Member of JAPAN PROPERTY MANAGEMENT ASSOCIATION
Group member of REAL ESTATE FAIR TRADE COUNCIL
(마지막 업데이트: {date})
2026/02/24
다음 업데이트
2026/03/03
계약기간
-
0800-111-6663(무료)
해외에서: +81-3-5155-4671









