(마지막 업데이트: 2026年01月27日)
ID :1947661
※ 문의시 제품의 ID번호를 직원에게 알려 주시기 바랍니다.
1K 맨션 임대 주택 후쿠시마현 코오리야마시アーバンスクエア郡山 102




























































임대료 · 초기 비용
48,000엔
관리비용
0 엔
시키킹
0 엔
레이킹
0 엔
물건명
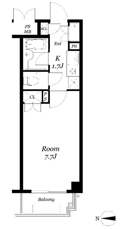
방구조
1K
면적
22.4㎡
건축 연월일
1992년2월
건물종별
맨션
접근
노선
토호쿠 선 코리야마 도보 10분
주소로
후쿠시마현 코오리야마시 本町1丁目9-8
0800-111-6663(무료)
해외에서: +81-3-5155-4671
상세정보
임대료
관리비용
48,000 엔
0 엔
시키킹
레이킹
0 엔
0 엔
보증금
상각금
- 엔
- 엔
방구조
1K
면적
22.4㎡
건축 연월일
1992년2월
층
1층 / 13층 건물
방향
서
건물종별
맨션
구조
철골 철근 콘크리트조
주택보험
필요함
입주 가능한 날
즉입주 가능
세부 조건
도시가스/오토락/엘리베이터/발코니/자전거 주차장 잇음/온수세정변좌/클로젯・수납/슈즈 인 클로젯/에어컨
추기
-
그 외
-
※ 게재되어있는 정보와 현황이 다른 경우에는 현상을 우선시 합니다.
위치
주소로
후쿠시마현 코오리야마시 本町1丁目9-8
노선
토호쿠 선 코리야마 도보 10분
그 외
보증회사
가입 필수(보증회사 :주식회사 글로벌 트러스트 네트웍스)
보증회사 이용료:첫 보증료 월세의 30%~100%(최저 보증료 20,000円~)
+ 연간보증료(10,000円)혹은 매월 보증료(1,000円~)
정보 출처
주식회사 글로벌 트러스트 네트웍스
신오쿠보점
〒169-0072
도쿄도 신주쿠구 오쿠보 1-15-15 AKIYAMA BLD2층
Member of THE TOKYO REAL ESTATE PUBLIC INTEREST INCORPORATED ASSOCIATION
Member of JAPAN PROPERTY MANAGEMENT ASSOCIATION
Group member of REAL ESTATE FAIR TRADE COUNCIL
(마지막 업데이트: {date})
2026/01/27
다음 업데이트
2026/02/03
계약기간
-
0800-111-6663(무료)
해외에서: +81-3-5155-4671






