(마지막 업데이트: 2026年01月29日)
ID :1952882
※ 문의시 제품의 ID번호를 직원에게 알려 주시기 바랍니다.
1K 맨션 임대 주택 오사카부 오사카시 니시쿠エスリード阿波座プライムコート 601号室








임대료 · 초기 비용
70,000엔
관리비용
5,000 엔
시키킹
0 엔
레이킹
70,000 엔
물건명
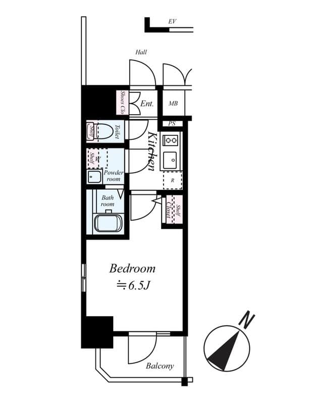
방구조
1K
면적
22.57㎡
건축 연월일
2023년2월
건물종별
맨션
접근
노선
츄오 선(오사카) 아와자 도보 8분
츄오 선(오사카) 쿠죠 도보 8분
주소로
오사카부 오사카시 니시쿠 川口3丁目3-5
0800-111-6663(무료)
해외에서: +81-3-5155-4671
상세정보
임대료
관리비용
70,000 엔
5,000 엔
시키킹
레이킹
0 엔
70,000 엔
보증금
상각금
- 엔
- 엔
방구조
1K
면적
22.57㎡
건축 연월일
2023년2월
층
6층 / 15층 건물
방향
남동
건물종별
맨션
구조
철근 콘크리트조
주택보험
필요함
입주 가능한 날
2026-3-중순
세부 조건
펫 대응/도시가스/욕실・화장실 분리/스토브 2구 이상/세탁기 놓는 곳(실내)/오토락/플로어링/끝 방/TV도어 폰/독립세면대/방범카메라/슈즈 인 클로젯/에어컨
추기
-
그 외
・個人申込の場合、「電子契約くん」でご契約いただきます。・お問い合わせについては、物件検索後の各項目の下記に記載しております【賃貸仲介様向けFAQサイト】にアクセスし、ご確認ください。
※ 게재되어있는 정보와 현황이 다른 경우에는 현상을 우선시 합니다.
주소로
오사카부 오사카시 니시쿠 川口3丁目3-5
노선
츄오 선(오사카) 아와자 도보 8분
츄오 선(오사카) 쿠죠 도보 8분
그 외
보증회사
가입 필수(보증회사 :주식회사 글로벌 트러스트 네트웍스)
보증회사 이용료:첫 보증료 월세의 30%~100%(최저 보증료 20,000円~)
+ 연간보증료(10,000円)혹은 매월 보증료(1,000円~)
정보 출처
주식회사 글로벌 트러스트 네트웍스
신오쿠보점
〒169-0072
도쿄도 신주쿠구 오쿠보 1-15-15 AKIYAMA BLD2층
Member of THE TOKYO REAL ESTATE PUBLIC INTEREST INCORPORATED ASSOCIATION
Member of JAPAN PROPERTY MANAGEMENT ASSOCIATION
Group member of REAL ESTATE FAIR TRADE COUNCIL
(마지막 업데이트: {date})
2026/01/29
다음 업데이트
2026/02/05
계약기간
-
0800-111-6663(무료)
해외에서: +81-3-5155-4671









