(마지막 업데이트: 2026年02月26日)
ID :1957963
※ 문의시 제품의 ID번호를 직원에게 알려 주시기 바랍니다.
1LDK 맨션 임대 주택 동경도 시부야쿠グランパセオ代々木上原 B104






































임대료 · 초기 비용
213,000엔
관리비용
12,000 엔
시키킹
0 엔
레이킹
0 엔
물건명
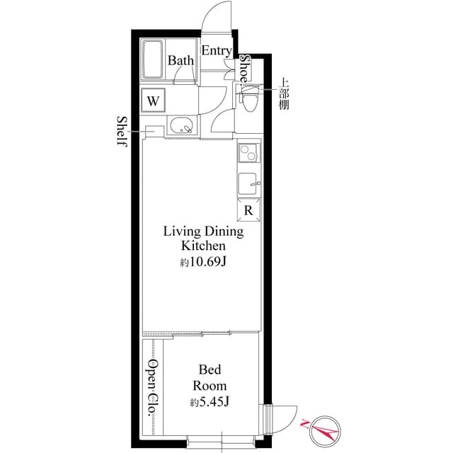
방구조
1LDK
면적
34.55㎡
건축 연월일
2025년12월
건물종별
맨션
접근
노선
오다큐 오다와라 선 요요기우에하라 도보 6분
치요다 선 요요기우에하라 도보 6분
주소로
동경도 시부야쿠 西原2丁目15-17
0800-111-6663(무료)
해외에서: +81-3-5155-4671
상세정보
임대료
관리비용
213,000 엔
12,000 엔
시키킹
레이킹
0 엔
0 엔
보증금
상각금
0 엔
- 엔
방구조
1LDK
면적
34.55㎡
건축 연월일
2025년12월
층
- 층 / 3층 건물
방향
서
건물종별
맨션
구조
철근 콘크리트조
주택보험
필요함
입주 가능한 날
즉입주 가능
세부 조건
2인 입주가능/도시가스/욕실・화장실 분리/스토브 2구 이상/세탁기 놓는 곳(실내)/오토락/엘리베이터/플로어링/택배박스/자전거 주차장 잇음/오토바이 주차장 있음/TV도어 폰/온수세정변좌/욕실건조기/독립세면대/인터넷 사용료 무료/클로젯・수납
추기
-
기타 비용
-
그 외
-
※ 게재되어있는 정보와 현황이 다른 경우에는 현상을 우선시 합니다.
위치
주소로
동경도 시부야쿠 西原2丁目15-17
노선
오다큐 오다와라 선 요요기우에하라 도보 6분
치요다 선 요요기우에하라 도보 6분
그 외
보증회사
가입 필수(보증회사 :주식회사 글로벌 트러스트 네트웍스)
보증회사 이용료:첫 보증료 월세의 30%~100%(최저 보증료 20,000円~)
+ 연간보증료(10,000円)혹은 매월 보증료(1,000円~)
정보 출처
주식회사 글로벌 트러스트 네트웍스
신오쿠보점
〒169-0072
도쿄도 신주쿠구 오쿠보 1-15-15 AKIYAMA BLD2층
Member of THE TOKYO REAL ESTATE PUBLIC INTEREST INCORPORATED ASSOCIATION
Member of JAPAN PROPERTY MANAGEMENT ASSOCIATION
Group member of REAL ESTATE FAIR TRADE COUNCIL
(마지막 업데이트: {date})
2026/02/25
다음 업데이트
2026/03/04
계약기간
-
0800-111-6663(무료)
해외에서: +81-3-5155-4671
