(마지막 업데이트: 2026年02月28日)
ID :1988792
※ 문의시 제품의 ID번호를 직원에게 알려 주시기 바랍니다.
1DK 맨션 임대 주택 아이치현 나고야시 쇼와구プレサンスレイズ桜山EAST 502




임대료 · 초기 비용
89,300엔
관리비용
8,570 엔
시키킹
0 엔
레이킹
0 엔
물건명
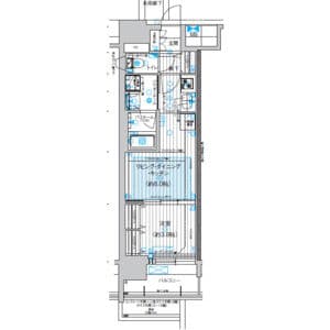
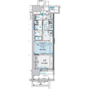
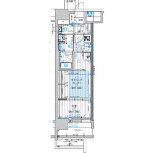
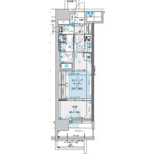
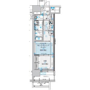
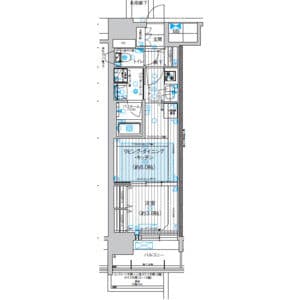
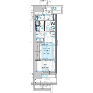
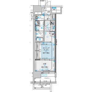
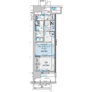
방구조
1DK
면적
33.09㎡
건축 연월일
2025년11월
건물종별
맨션
접근
노선
나고야 시영 지하철 쓰루마이 선 Gokiso 도보 8분
나고야 시영 지하철 사쿠라도리 선 sakurayama 도보 4분
주소로
아이치현 나고야시 쇼와구 愛知県名古屋市昭和区桜山町2丁目42
0800-111-6663(무료)
해외에서: +81-3-5155-4671
상세정보
임대료
관리비용
89,300 엔
8,570 엔
시키킹
레이킹
0 엔
0 엔
보증금
상각금
0 엔
- 엔
방구조
1DK
면적
33.09㎡
건축 연월일
2025년11월
층
5층 / 15층 건물
방향
서
건물종별
맨션
구조
철근 콘크리트조
주택보험
필요함
입주 가능한 날
즉입주 가능
세부 조건
펫 상담가능/도시가스/욕실・화장실 분리/스토브 2구 이상/세탁기 놓는 곳(실내)/오토락/엘리베이터/발코니/택배박스/TV도어 폰/온수세정변좌/욕실건조기/방범카메라/인터넷 사용료 무료/에어컨
추기
-
기타 비용
初期費用:契約事務手数料:11000
ランニング費用:更新事務手数料(更新時)、24H駆けつけサービス(月額):11990
その他費用:エアコンクリーニング(退去時):16500
그 외
ペット飼育時、1匹につき敷金1ヶ月(小型犬・猫 合計2匹まで) ※エアコンは後日設置予定(日程によっては、工事が入居後となる可能性があります) ※内覧は402・1102号室でお願いいたします
※ 게재되어있는 정보와 현황이 다른 경우에는 현상을 우선시 합니다.
위치
주소로
아이치현 나고야시 쇼와구 愛知県名古屋市昭和区桜山町2丁目42
노선
나고야 시영 지하철 쓰루마이 선 Gokiso 도보 8분
나고야 시영 지하철 사쿠라도리 선 sakurayama 도보 4분
그 외
보증회사
가입 필수(보증회사 :주식회사 글로벌 트러스트 네트웍스)
보증회사 이용료:첫 보증료 월세의 30%~100%(최저 보증료 20,000円~)
+ 연간보증료(10,000円)혹은 매월 보증료(1,000円~)
정보 출처
주식회사 글로벌 트러스트 네트웍스
신오쿠보점
〒169-0072
도쿄도 신주쿠구 오쿠보 1-15-15 AKIYAMA BLD2층
Member of THE TOKYO REAL ESTATE PUBLIC INTEREST INCORPORATED ASSOCIATION
Member of JAPAN PROPERTY MANAGEMENT ASSOCIATION
Group member of REAL ESTATE FAIR TRADE COUNCIL
(마지막 업데이트: {date})
2026/02/27
다음 업데이트
2026/03/06
계약기간
-
0800-111-6663(무료)
해외에서: +81-3-5155-4671







