(마지막 업데이트: 2026年02月24日)
2014年7月大規模改修済、駐車場多数空き有
ID :1003192
※ 문의시 제품의 ID번호를 직원에게 알려 주시기 바랍니다.
0그 외 그 외 임대 주택 토쿠시마현 토쿠시마시徳島ファーストビル 5F-A1(分割)






























임대료 · 초기 비용
161,782엔
관리비용
0 엔
시키킹
970,692 엔
레이킹
0 엔
물건명
방구조
그 외
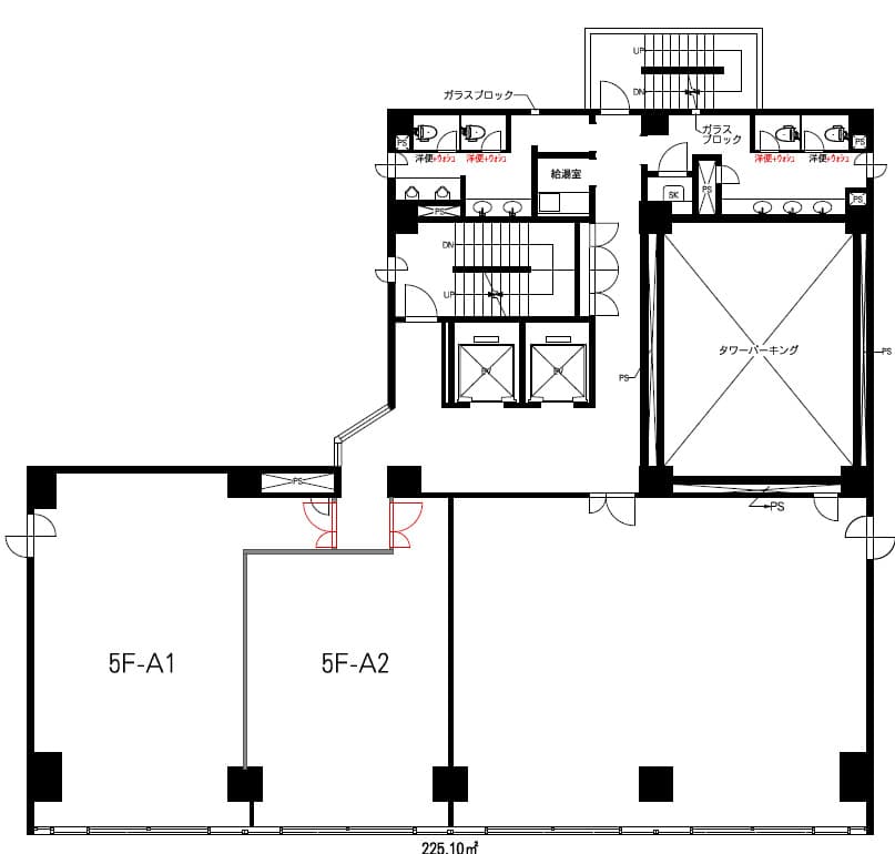
면적
64.85㎡
건축 연월일
1991년11월
건물종별
그 외
접근
노선
JR 고토쿠 선 Tokushima 도보 10분
주소로
토쿠시마현 토쿠시마시 東大工町1丁目9-1
0800-111-6663(무료)
해외에서: +81-3-5155-4671
상세정보
임대료
관리비용
161,782 엔
0 엔
시키킹
레이킹
970,692 엔
0 엔
보증금
상각금
- 엔
- 엔
방구조
그 외
면적
64.85㎡
건축 연월일
1991년11월
층
5층 / 9층 건물
방향
-
건물종별
그 외
구조
철골 철근 콘크리트조
주택보험
필요함
입주 가능한 날
상담
세부 조건
엘리베이터/끝 방/내진 구조
추기
-
기타 비용
水道料:2200
그 외
-
※ 게재되어있는 정보와 현황이 다른 경우에는 현상을 우선시 합니다.
위치
주소로
토쿠시마현 토쿠시마시 東大工町1丁目9-1
노선
JR 고토쿠 선 Tokushima 도보 10분
그 외
보증회사
가입 필수(보증회사 :주식회사 글로벌 트러스트 네트웍스)
보증회사 이용료:첫 보증료 월세의 30%~100%(최저 보증료 20,000円~)
+ 연간보증료(10,000円)혹은 매월 보증료(1,000円~)
정보 출처
주식회사 글로벌 트러스트 네트웍스
신오쿠보점
〒169-0072
도쿄도 신주쿠구 오쿠보 1-15-15 AKIYAMA BLD2층
Member of THE TOKYO REAL ESTATE PUBLIC INTEREST INCORPORATED ASSOCIATION
Member of JAPAN PROPERTY MANAGEMENT ASSOCIATION
Group member of REAL ESTATE FAIR TRADE COUNCIL
(마지막 업데이트: {date})
2026/02/21
다음 업데이트
2026/03/01
계약기간
-
0800-111-6663(무료)
해외에서: +81-3-5155-4671