(마지막 업데이트: 2026年01月08日)
☆駅チカ物件!徒歩1分!☆ ☆オートロック付き〜☆
ID :1921888
※ 문의시 제품의 ID번호를 직원에게 알려 주시기 바랍니다.
1K 맨션 임대 주택 치바현 후나바시시ジュメル京成船橋 704


































임대료 · 초기 비용
79,000엔
관리비용
12,000 엔
시키킹
79,000 엔
레이킹
79,000 엔
물건명
방구조
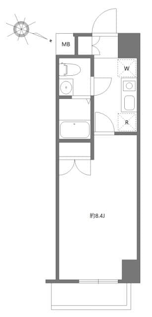
1K
면적
24.67㎡
건축 연월일
2013년1월
건물종별
맨션
접근
노선
케이세이 혼 선 케이세이 후나바시 도보 1분
소부 선 후나바시 도보 6분
주소로
치바현 후나바시시 本町1丁目11-3
0800-111-6663(무료)
해외에서: +81-3-5155-4671
상세정보
임대료
관리비용
79,000 엔
12,000 엔
시키킹
레이킹
79,000 엔
79,000 엔
보증금
상각금
0 엔
- 엔
방구조
1K
면적
24.67㎡
건축 연월일
2013년1월
층
7층 / 7층 건물
방향
북동
건물종별
맨션
구조
철근 콘크리트조
주택보험
필요함
입주 가능한 날
상담
세부 조건
정기차가권/도시가스/욕실・화장실 분리/샤워/IH 인덕션/세탁기 놓는 곳(실내)/오토락/엘리베이터/발코니/플로어링/택배박스/자전거 주차장 잇음/TV도어 폰/온수세정변좌/디자이너즈/독립세면대/방범카메라/클로젯・수납/슈즈 인 클로젯/에어컨
추기
-
그 외
■短期解約違約金:1年未満2カ月 ■解約予告:2カ月前 ■プレミアデスク代の中に登録料6600円(税込)を含みます。 ■本物件は電子契約となります。 ■再契約手数料:新賃料の1.5ヶ月 ※本物件は定期借家契約です。(大手法人でも定借必須) 再契約は貸主借主の合意に限り再契約相談可能とする。 再契約は保証するものではありません。
※ 게재되어있는 정보와 현황이 다른 경우에는 현상을 우선시 합니다.
주소로
치바현 후나바시시 本町1丁目11-3
노선
케이세이 혼 선 케이세이 후나바시 도보 1분
소부 선 후나바시 도보 6분
그 외
보증회사
가입 필수(보증회사 :주식회사 글로벌 트러스트 네트웍스)
보증회사 이용료:첫 보증료 월세의 30%~100%(최저 보증료 20,000円~)
+ 연간보증료(10,000円)혹은 매월 보증료(1,000円~)
정보 출처
주식회사 글로벌 트러스트 네트웍스
신오쿠보점
〒169-0072
도쿄도 신주쿠구 오쿠보 1-15-15 AKIYAMA BLD2층
Member of THE TOKYO REAL ESTATE PUBLIC INTEREST INCORPORATED ASSOCIATION
Member of JAPAN PROPERTY MANAGEMENT ASSOCIATION
Group member of REAL ESTATE FAIR TRADE COUNCIL
(마지막 업데이트: {date})
2026/01/07
다음 업데이트
2026/01/21
계약기간
정기차계약(갱신불가) 24개월
0800-111-6663(무료)
해외에서: +81-3-5155-4671


