(마지막 업데이트: 2026年02月26日)
2026/04/30解約予定
ID :1996751
※ 문의시 제품의 ID번호를 직원에게 알려 주시기 바랍니다.
1DK 맨션 임대 주택 효고현 코베시 효고쿠アドバンス神戸湊町 0701












임대료 · 초기 비용
90,000엔
관리비용
5,970 엔
시키킹
- 엔
레이킹
95,970 엔
물건명
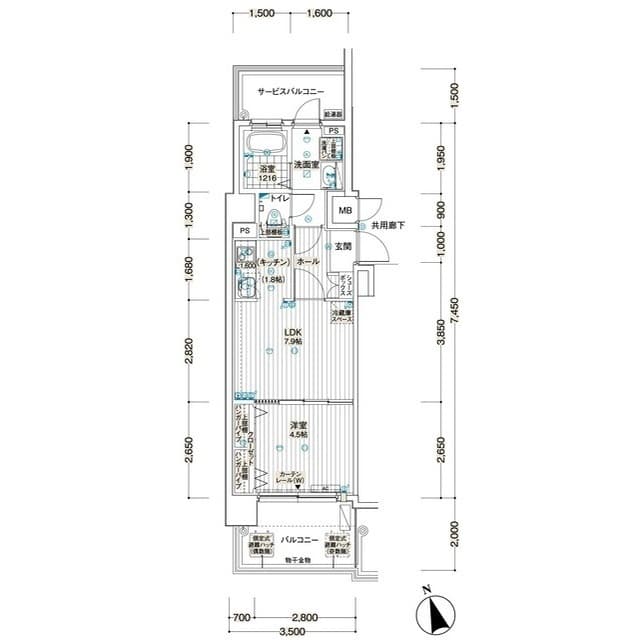
방구조
1DK
면적
35.35㎡
건축 연월일
2008년4월
건물종별
맨션
접근
노선
산요 혼 선 고베 도보 10분
코베 고속 토자이 선 코소쿠코베 도보 3분
코베 고속 토자이 선 신카이치 도보 3분
주소로
효고현 코베시 효고쿠 湊町3丁目4-2
0800-111-6663(무료)
해외에서: +81-3-5155-4671
상세정보
임대료
관리비용
90,000 엔
5,970 엔
시키킹
레이킹
- 엔
95,970 엔
보증금
상각금
- 엔
- 엔
방구조
1DK
면적
35.35㎡
건축 연월일
2008년4월
층
7층 / 10층 건물
방향
남
건물종별
맨션
구조
철근 콘크리트조
주택보험
필요함
입주 가능한 날
2026-5
세부 조건
도시가스/욕실・화장실 분리/스토브 2구 이상/시스템 키친/세면 화장대/세탁기 놓는 곳(실내)/CS안테나/BS안테나/오토락/엘리베이터/발코니/택배박스/TV도어 폰/온수세정변좌/독립세면대/방범카메라/클로젯・수납/슈즈 인 클로젯/에어컨
추기
-
기타 비용
-
그 외
■解約予告2ヶ月前(解約月日割) ■賃貸でんき必須 ■スマサポコンシェル加入必須(法人契約は除く) ■指定保証会社:ルームバンクインシュア ■短期違約金:1年未満の解約は「家賃+共益費」1ヶ月分の礼金要※礼金0円の場合は2か月分 ■法人契約で礼金0円の場合、「家賃+共益費」1か月分の礼金要 ■本貸室の電気供給は賃貸でんき契約が必須(0120-772-003)
※ 게재되어있는 정보와 현황이 다른 경우에는 현상을 우선시 합니다.
주소로
효고현 코베시 효고쿠 湊町3丁目4-2
노선
산요 혼 선 고베 도보 10분
코베 고속 토자이 선 코소쿠코베 도보 3분
코베 고속 토자이 선 신카이치 도보 3분
그 외
보증회사
가입 필수(보증회사 :주식회사 글로벌 트러스트 네트웍스)
보증회사 이용료:첫 보증료 월세의 30%~100%(최저 보증료 20,000円~)
+ 연간보증료(10,000円)혹은 매월 보증료(1,000円~)
정보 출처
주식회사 글로벌 트러스트 네트웍스
신오쿠보점
〒169-0072
도쿄도 신주쿠구 오쿠보 1-15-15 AKIYAMA BLD2층
Member of THE TOKYO REAL ESTATE PUBLIC INTEREST INCORPORATED ASSOCIATION
Member of JAPAN PROPERTY MANAGEMENT ASSOCIATION
Group member of REAL ESTATE FAIR TRADE COUNCIL
(마지막 업데이트: {date})
2026/02/26
다음 업데이트
2026/03/05
계약기간
-
0800-111-6663(무료)
해외에서: +81-3-5155-4671