(最後更新日期:2026年03月18日)

ID :2028742

※洽詢時請告訴服務人員您的 ID 號碼。

1DK 高級公寓 租赁物件 東京都 北区ジェノヴィア北池袋スカイガーデン 502

Property
Property
Property
Property
Property
Property
Property
Property
Property
Property
Property
Property
Property
Property
Property
Property

租金/初始成本

164,000日元

管理費
11,000 日元
押金
0 日元
禮金
164,000 日元

物件名稱

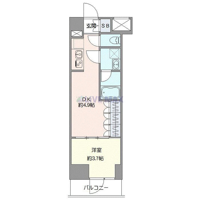
格局
1DK
面積
28.2㎡
建築年數
2025年10月
建築物種類
高級公寓

交通

交通

埼京線 板桥 步行 5分鐘

都营三田线 西巢鸭 步行 9分鐘

住所
東京都 北区 滝野川7丁目25-14
0800-111-6663(免費

來自海外: +81-3-5155-4671

詳細資訊

房租 管理費
164,000 日元 11,000 日元
押金 禮金
0 日元 164,000 日元
保證金 押金(不會退還)
- 日元 - 日元
格局
1DK
面積
28.2㎡
建築年數
2025年10月
所在樓層
5所在樓層 / 6層樓
方位
北西
建築物種類
高級公寓
構造
钢筋混凝土
住宅保險
可入住日
2026-5-中旬
條件
可二人入住/可飼養寵物/定期租賃權/都市煤氣/浴室、廁所分開/雙口以上爐灶/重新加熱/洗衣機放置處(室内)/自動鎖/電梯/地板/智能自助快遞櫃/可視門鈴/溫水洗淨便器/浴室乾燥機/附帶家具、家電/独立洗面台/免費使用網路/壁櫥/有冷氣
後記
-
其他費用
事務手数料:22000 退去時精算手数料:5500
備註
リブクラブ2200円(月額) SBI少額短期保険800円(月額) ■鍵交換代33000円■退去時クリーンコート代55000円■事務手数料22000円■退去時精算手数料5500円(最終請求時)■リブクラブ2200円/月■SBI少額短期保険800円/月■指定賃貸保証加入(総賃料100%)■賃料等引き落とし料330円/月■家具家電撤去費用38500円(家具家電無し契約を希望の場合)■短期解約違約金:賃料1ヶ月分(1年未満)■モバイルwifi(50GB)付■民泊・簡易宿泊

※ 刊登內容與現狀不相符的時候,以現場狀況為準。

住所
東京都 北区 滝野川7丁目25-14
交通
埼京線 板桥 步行 5分鐘 都营三田线 西巢鸭 步行 9分鐘

備註

保證公司
必須:(保證公司名:股份有限公司全球信賴網) 保證費用:頭期款 一個月份房租的30~100%(最低20,000日幣~) +每年保證費用10,000日幣或每月1,000日幣~
資訊提供者
Global Trust Networks Co.,Ltd. 新大久保店 〒169-0072 東京都新宿区大久保1-15-15 AKIYAMA BLD2階 Member of THE TOKYO REAL ESTATE PUBLIC INTEREST INCORPORATED ASSOCIATION Member of JAPAN PROPERTY MANAGEMENT ASSOCIATION Group member of REAL ESTATE FAIR TRADE COUNCIL
(最後更新日期:{date})
2026/03/17
下次更新日期
2026/03/24
契約期間
定期租賃 24個月
聯繫我們

支援多種語言!

委託我們幫您找房吧!

為提供您更便利的線上體驗,請同意基於隱私權政策的Cookie取得與使用方針。🍪