更新日期
ID :1502185
※洽詢時請告訴服務人員您的 ID 號碼。
1K 高級公寓 租赁物件 千葉県 船橋市T-stage Keisei Higashinakayama 609


































租金/初始成本
82,500日元
管理費
8,000 日元
押金
82,500 日元
禮金
0 日元
物件名稱
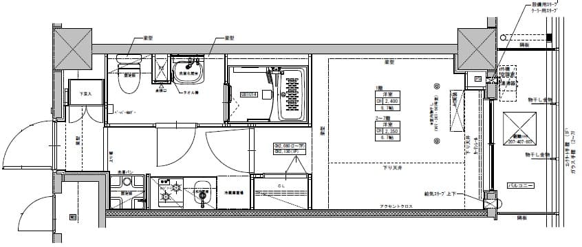
格局
1K
面積
23.7㎡
建築年數
2025年2月
建築物種類
高級公寓
交通
交通
京成本线 东中山 步行 6分鐘
京成本线 京成中山 步行 12分鐘
住所
千葉県 船橋市 東中山2丁目4-25
0800-111-6663(免費)
來自海外: +81-3-5155-4671
詳細資訊
房租
管理費
82,500 日元
8,000 日元
押金
禮金
82,500 日元
0 日元
保證金
押金(不會退還)
0 日元
- 日元
格局
1K
面積
23.7㎡
建築年數
2025年2月
所在樓層
6所在樓層 / 7層樓
方位
南东
建築物種類
高級公寓
構造
钢筋混凝土
住宅保險
要
可入住日
即入居可
條件
可二人入住/都市煤氣/浴室、廁所分開/淋浴/洗衣機放置處(室内)/自動鎖/電梯/地板/智能自助快遞櫃/可視門鈴/溫水洗淨便器/設計住宅/浴室乾燥機/免費使用網路/壁櫥/鞋櫃/有冷氣
後記
-
備註
-
※ 刊登內容與現狀不相符的時候,以現場狀況為準。
位置
住所
千葉県 船橋市 東中山2丁目4-25
交通
京成本线 东中山 步行 6分鐘
京成本线 京成中山 步行 12分鐘
備註
保證公司
必須:(保證公司名:股份有限公司全球信賴網)
保證費用:頭期款 一個月份房租的30~100%(最低20,000日幣~)
+每年保證費用10,000日幣或每月1,000日幣~
資訊提供者
Global Trust Networks Co.,Ltd.
新大久保店
〒169-0072
東京都新宿区大久保1-15-15 AKIYAMA BLD2階
Member of THE TOKYO REAL ESTATE PUBLIC INTEREST INCORPORATED ASSOCIATION
Member of JAPAN PROPERTY MANAGEMENT ASSOCIATION
Group member of REAL ESTATE FAIR TRADE COUNCIL
更新日期
2025/11/12
下次更新日期
2025/11/21
契約期間
-
0800-111-6663(免費)
來自海外: +81-3-5155-4671






