更新日期
保証金償却・付帯費用がございますので必ずお問合せください。
ID :1805115
※洽詢時請告訴服務人員您的 ID 號碼。
1DK 高級公寓 租赁物件 東京都 板橋区AZEST 志村三丁目 0203




















租金/初始成本
104,000日元
管理費
15,000 日元
押金
- 日元
禮金
- 日元
物件名稱
格局
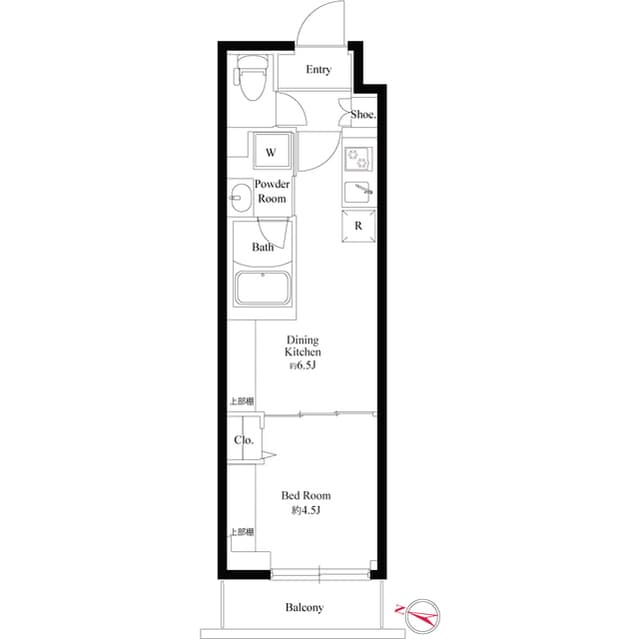
1DK
面積
25.5㎡
建築年數
2020年11月
建築物種類
高級公寓
交通
交通
都营三田线 志村三丁目 步行 7分鐘
都营三田线 莲根 步行 7分鐘
住所
東京都 板橋区 坂下1丁目39-3
0800-111-6663(免費)
來自海外: +81-3-5155-4671
詳細資訊
房租
管理費
104,000 日元
15,000 日元
押金
禮金
- 日元
- 日元
保證金
押金(不會退還)
- 日元
- 日元
格局
1DK
面積
25.5㎡
建築年數
2020年11月
所在樓層
2所在樓層 / 4層樓
方位
南西
建築物種類
高級公寓
構造
钢筋混凝土
住宅保險
要
可入住日
2026-1
條件
可二人入住/寵物可商談/LP煤氣/浴室、廁所分開/雙口以上爐灶/整体廚房/洗衣機放置處(室内)/CS天線/BS天線/自動鎖/電梯/陽台/地板/智能自助快遞櫃/附自行車停車場/附機車停車場/溫水洗淨便器/浴室乾燥機/防盜攝像監控/壁櫥/洗面台/有冷氣
後記
-
備註
-
※ 刊登內容與現狀不相符的時候,以現場狀況為準。
位置
住所
東京都 板橋区 坂下1丁目39-3
交通
都营三田线 志村三丁目 步行 7分鐘
都营三田线 莲根 步行 7分鐘
備註
保證公司
必須:(保證公司名:股份有限公司全球信賴網)
保證費用:頭期款 一個月份房租的30~100%(最低20,000日幣~)
+每年保證費用10,000日幣或每月1,000日幣~
資訊提供者
Global Trust Networks Co.,Ltd.
新大久保店
〒169-0072
東京都新宿区大久保1-15-15 AKIYAMA BLD2階
Member of THE TOKYO REAL ESTATE PUBLIC INTEREST INCORPORATED ASSOCIATION
Member of JAPAN PROPERTY MANAGEMENT ASSOCIATION
Group member of REAL ESTATE FAIR TRADE COUNCIL
更新日期
2025/10/25
下次更新日期
2025/11/01
契約期間
-
0800-111-6663(免費)
來自海外: +81-3-5155-4671








