(最後更新日期:2026年02月27日)
☆築浅物件☆ ☆インターネット無料(ギガプライズに限る)☆
ID :1998412
※洽詢時請告訴服務人員您的 ID 號碼。
1K 高級公寓 租赁物件 東京都 板橋区ルーデンス常盤台 0404
































租金/初始成本
102,000日元
管理費
12,000 日元
押金
102,000 日元
禮金
204,000 日元
物件名稱
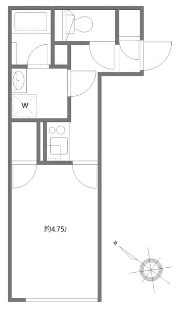
格局
1K
面積
21.26㎡
建築年數
2023年11月
建築物種類
高級公寓
交通
交通
东武东上线 中板桥 步行 14分鐘
东武东上线 常盘台(东京) 步行 4分鐘
住所
東京都 板橋区 南常盤台1丁目39-7
0800-111-6663(免費)
來自海外: +81-3-5155-4671
詳細資訊
房租
管理費
102,000 日元
12,000 日元
押金
禮金
102,000 日元
204,000 日元
保證金
押金(不會退還)
- 日元
- 日元
格局
1K
面積
21.26㎡
建築年數
2023年11月
所在樓層
4所在樓層 / 4層樓
方位
南西
建築物種類
高級公寓
構造
钢筋混凝土
住宅保險
要
可入住日
咨詢
條件
都市煤氣/浴室、廁所分開/淋浴/IH電磁爐/雙口以上爐灶/洗衣機放置處(室内)/自動鎖/地板/智能自助快遞櫃/附自行車停車場/拐角房間/溫水洗淨便器/浴室乾燥機/独立洗面台/免費使用網路/壁櫥/有冷氣
後記
-
其他費用
プレミアデスク2年(税込):22000
備註
■短期解約違約金:1年未満2ヶ月 ■解約予告:2カ月前 ■プレミアデスク代の中に登録料6600円(税込)を含みます。 ■本物件は電子契約となります。 ■駐輪場等の共用部については【共用管理】まで直接問合せ下さい。 ※写真は参考となりますのでご注意ください。 ■再契約手数料:新賃料の1.5ヶ月 ※本物件は定期借家契約です。(大手法人相談可) 再契約は貸主借主の合意に限り再契約相談可能とする。 再契約は保
※ 刊登內容與現狀不相符的時候,以現場狀況為準。
住所
東京都 板橋区 南常盤台1丁目39-7
交通
东武东上线 中板桥 步行 14分鐘
东武东上线 常盘台(东京) 步行 4分鐘
備註
保證公司
必須:(保證公司名:股份有限公司全球信賴網)
保證費用:頭期款 一個月份房租的30~100%(最低20,000日幣~)
+每年保證費用10,000日幣或每月1,000日幣~
資訊提供者
Global Trust Networks Co.,Ltd.
新大久保店
〒169-0072
東京都新宿区大久保1-15-15 AKIYAMA BLD2階
Member of THE TOKYO REAL ESTATE PUBLIC INTEREST INCORPORATED ASSOCIATION
Member of JAPAN PROPERTY MANAGEMENT ASSOCIATION
Group member of REAL ESTATE FAIR TRADE COUNCIL
(最後更新日期:{date})
2026/02/26
下次更新日期
2026/03/12
契約期間
-
0800-111-6663(免費)
來自海外: +81-3-5155-4671









