(最後更新日期:2026年04月03日)
ID :2049123
※洽詢時請告訴服務人員您的 ID 號碼。
1K 公寓 租赁物件 大阪府 大阪市都島区エスタージュ野江 303






































租金/初始成本
59,000日元
管理費
3,000 日元
押金
0 日元
禮金
0 日元
物件名稱
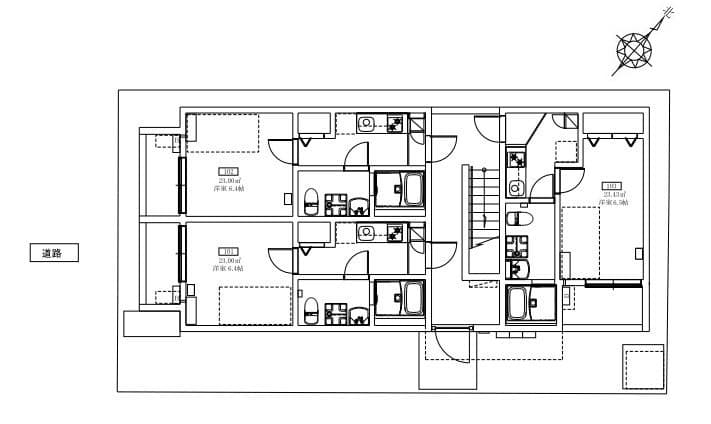
格局
1K
面積
23.43㎡
建築年數
2018年10月
建築物種類
公寓
交通
交通
谷町線 野江内代 步行3分鐘
住所
大阪府 大阪市都島区 内代町2丁目8番3号
0800-111-6663(免費)
來自海外: +81-3-5155-4671
詳細資訊
房租
管理費
59,000 日元
3,000 日元
押金
禮金
0 日元
0 日元
保證金
押金(不會退還)
- 日元
- 日元
格局
1K
面積
23.43㎡
建築年數
2018年10月
所在樓層
3所在樓層 / 3層樓
方位
南东
建築物種類
公寓
構造
木头
住宅保險
要
可入住日
2026-4-中旬
條件
LP煤氣/浴室、廁所分開/淋浴/雙口以上爐灶/重新加熱/洗衣機放置處(室内)/自動鎖/陽台/地板/網路適用(光纖)/拐角房間/可視門鈴/溫水洗淨便器/設計住宅/浴室乾燥機/独立洗面台/免費使用網路/壁櫥/鞋櫃/有冷氣
後記
-
其他費用
入居者アプリ設定費:22000
ルムサポ:2700
備註
-
※ 刊登內容與現狀不相符的時候,以現場狀況為準。
位置
住所
大阪府 大阪市都島区 内代町2丁目8番3号
交通
谷町線 野江内代 步行 3分鐘
備註
保證公司
必須:(保證公司名:股份有限公司全球信賴網)
保證費用:頭期款 一個月份房租的30~100%(最低20,000日幣~)
+每年保證費用10,000日幣或每月1,000日幣~
資訊提供者
Global Trust Networks Co.,Ltd.
新大久保店
〒169-0072
東京都新宿区大久保1-15-15 AKIYAMA BLD2階
Member of THE TOKYO REAL ESTATE PUBLIC INTEREST INCORPORATED ASSOCIATION
Member of JAPAN PROPERTY MANAGEMENT ASSOCIATION
Group member of REAL ESTATE FAIR TRADE COUNCIL
最後更新日期
2026/04/03
下次更新日期
2026/04/10
契約期間
-
0800-111-6663(免費)
來自海外: +81-3-5155-4671
