更新日期
弊社貸主の為、仲介手数料不要など。諸費用ご相談ください!
ID :988059
※洽詢時請告訴服務人員您的 ID 號碼。
1K 高級公寓 租赁物件 大阪府 大阪市東成区ファステート大阪上本町ソーレ 302














































租金/初始成本
56,000日元
管理費
10,000 日元
押金
0 日元
禮金
56,000 日元
物件名稱
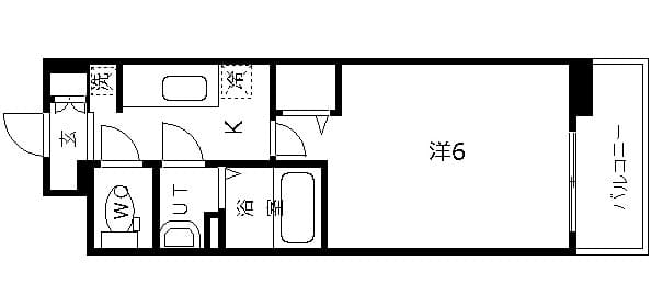
格局
1K
面積
20.72㎡
建築年數
2019年8月
建築物種類
高級公寓
交通
交通
大阪環状線 鶴橋 步行 7分鐘
大阪環状線 玉造 步行 14分鐘
住所
大阪府 大阪市東成区 玉津3丁目2-1
0800-111-6663(免費)
來自海外: +81-3-5155-4671
詳細資訊
房租
管理費
56,000 日元
10,000 日元
押金
禮金
0 日元
56,000 日元
保證金
押金(不會退還)
- 日元
- 日元
格局
1K
面積
20.72㎡
建築年數
2019年8月
所在樓層
3所在樓層 / 10層樓
方位
北
建築物種類
高級公寓
構造
钢筋混凝土
住宅保險
要
可入住日
2025-5-上旬
條件
都市煤氣/浴室、廁所分開/雙口以上爐灶/洗衣機放置處(室内)/自動鎖/電梯/智能自助快遞櫃/可視門鈴/浴室乾燥機/独立洗面台/防盜攝像監控/免費使用網路/壁櫥/鞋櫃/有冷氣
後記
-
備註
当社スタッフの豊富な経験から、住まい探しに関するお問い合わせを受け付けております。お客様のニーズにお応えできるよう努めて参りますので、まずはお気軽にご連絡下さい。
※ 刊登內容與現狀不相符的時候,以現場狀況為準。
位置
住所
大阪府 大阪市東成区 玉津3丁目2-1
交通
大阪環状線 鶴橋 步行 7分鐘
大阪環状線 玉造 步行 14分鐘
備註
保證公司
必須:(保證公司名:股份有限公司全球信賴網)
保證費用:頭期款 一個月份房租的30~100%(最低20,000日幣~)
+每年保證費用10,000日幣或每月1,000日幣~
資訊提供者
Global Trust Networks Co.,Ltd.
新大久保店
〒169-0072
東京都新宿区大久保1-15-15 AKIYAMA BLD2階
Member of THE TOKYO REAL ESTATE PUBLIC INTEREST INCORPORATED ASSOCIATION
Member of JAPAN PROPERTY MANAGEMENT ASSOCIATION
Group member of REAL ESTATE FAIR TRADE COUNCIL
更新日期
2025/09/29
下次更新日期
2025/10/07
契約期間
-
條件類似的房子

60,500日元(管理費 9,000 日元)
MV.imp大阪鶴橋大阪市生野区 鶴橋5丁目2-18
押金 0 日元
禮金 0 日元

60,100日元(管理費 8,000 日元)
エスリード大阪城南グランデュクス大阪市東成区 東小橋2丁目4番15号
押金 - 日元
禮金 60,100 日元

59,000日元(管理費 9,000 日元)
MV.imp大阪鶴橋大阪市生野区 鶴橋5丁目2-18
押金 0 日元
禮金 0 日元

60,000日元(管理費 10,000 日元)
ファステート大阪上本町ソーレ大阪市東成区 玉津3丁目2-1
押金 0 日元
禮金 60,000 日元

60,000日元(管理費 10,000 日元)
プレサンス上町台筆ヶ崎SOUTH大阪市天王寺区 筆ケ崎町4-18
押金 0 日元
禮金 60,000 日元

60,000日元(管理費 10,000 日元)
ファステート大阪上本町ソーレ大阪市東成区 玉津3丁目2-1
押金 0 日元
禮金 60,000 日元

57,000日元(管理費 10,000 日元)
ファステート大阪上本町ソーレ大阪市東成区 玉津3丁目2-1
押金 0 日元
禮金 57,000 日元
0800-111-6663(免費)
來自海外: +81-3-5155-4671