(最后更新日期:2026年04月28日)
ID :2067183
※咨询时请告知工作人员此处您的ID号码。
1K 高级公寓 租赁物件 東京都 板橋区グローバン板橋 0604




































租金/初始成本
88,000日元
管理费
12,000 日元
押金
0 日元
礼金
0 日元
物件
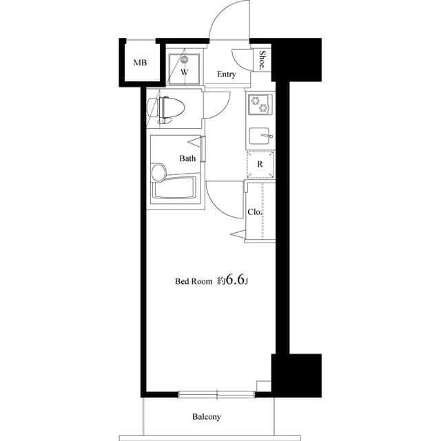
房间布局
1K
面积
20.52㎡
建筑年月日
2009年5月
建筑物类别
高级公寓
交通
交通
埼京线 板桥 步行2分
都營三田線 新板橋 步行5分
住所
東京都 板橋区 板橋1丁目11-7
0800-111-6663(免费)
来自海外: +81-3-5155-4671
详细信息
房租
管理费
88,000 日元
12,000 日元
押金
礼金
0 日元
0 日元
保证金
押金(不退还)
176,000 日元
176,000 日元
房间布局
1K
面积
20.52㎡
建筑年月日
2009年5月
楼
6楼 / 12层楼的建筑
朝向
北东
建筑物类别
高级公寓
构造
钢筋混凝土
房屋火灾保险
要
可入住时间
2026-7-上旬
详细条件
可二人入住/都市煤气/浴室、卫生间分开/双口以上炉灶/洗衣机放置处(室内)/自动锁/电梯/阳台/地板/智能自助快递柜/附自行车停车场/可视门铃/温水洗净座便器/浴室干燥机
备考
-
其他费用
-
其他
-
※ 登载内容与现状不符的时候,以现状为准。
位置
住所
東京都 板橋区 板橋1丁目11-7
交通
埼京线 板桥 步行 2分
都營三田線 新板橋 步行 5分
其他
保证公司
必须(保证公司名:株式会社全球信赖网)
保证公司费用:初期保证费 月房租的30%~100%(最低保证费20,000日元~)
+年度保证费(10,000日元)或月度保证费(1,000日元~)
信息提供者
Global Trust Networks Co.,Ltd.
新大久保分公司
〒169 - 0072
東京都新宿区大久保1-15-15 AKIYAMA BLD2楼
Member of THE TOKYO REAL ESTATE PUBLIC INTEREST INCORPORATED ASSOCIATION
Member of JAPAN PROPERTY MANAGEMENT ASSOCIATION
Group member of REAL ESTATE FAIR TRADE COUNCIL
最后更新日期
2026/04/25
下次更新日期
2026/05/04
合同期
-
0800-111-6663(免费)
来自海外: +81-3-5155-4671

