(最后更新日期:2026年04月28日)
ID :995120
※咨询时请告知工作人员此处您的ID号码。
1K 高级公寓 租赁物件 東京都 新宿区スカイコート神楽坂参番館 302








































租金/初始成本
86,500日元
管理费
7,500 日元
押金
86,500 日元
礼金
86,500 日元
物件
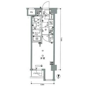
房间布局
1K
面积
22.5㎡
建筑年月日
2009年3月
建筑物类别
高级公寓
交通
交通
东西线 神樂坂 步行6分
都營大江戶線 牛込神樂坂 步行12分
住所
東京都 新宿区 東京都新宿区榎町51
0800-111-6663(免费)
来自海外: +81-3-5155-4671
详细信息
房租
管理费
86,500 日元
7,500 日元
押金
礼金
86,500 日元
86,500 日元
保证金
押金(不退还)
0 日元
- 日元
房间布局
1K
面积
22.5㎡
建筑年月日
2009年3月
楼
3楼 / 4层楼的建筑
朝向
北
建筑物类别
高级公寓
构造
钢筋混凝土
房屋火灾保险
要
可入住时间
2023-8-中旬
详细条件
都市煤气/浴室、卫生间分开/洗衣机放置处(室内)/自动锁/电梯/阳台/地板/智能自助快递柜/附自行车停车场/附摩托车停车场/可视门铃/温水洗净座便器/浴室干燥机/独立洗面台/防盗摄像头/有空调
备考
-
其他费用
24時間安心サポート(入居時):16500
其他
収納はクロゼット・シューズボックスなど豊富なので、衣類や履き物の整理がしやすく便利です。共用部には宅配ボックス・ゴミ出し24時間OKなど様々な設備やサービスが揃っているので便利です。セキュリティ面は、TVインターホン・オートロックなどを設置しているので安全面でも優れております。室内設備は洗面化粧台・浴室乾燥機などが揃っており、とても充実しています。内装に統一感が出る、全居室フローリングの物件です。
※ 登载内容与现状不符的时候,以现状为准。
位置
住所
東京都 新宿区 東京都新宿区榎町51
交通
东西线 神樂坂 步行 6分
都營大江戶線 牛込神樂坂 步行 12分
其他
保证公司
必须(保证公司名:株式会社全球信赖网)
保证公司费用:初期保证费 月房租的30%~100%(最低保证费20,000日元~)
+年度保证费(10,000日元)或月度保证费(1,000日元~)
信息提供者
Global Trust Networks Co.,Ltd.
新大久保分公司
〒169 - 0072
東京都新宿区大久保1-15-15 AKIYAMA BLD2楼
Member of THE TOKYO REAL ESTATE PUBLIC INTEREST INCORPORATED ASSOCIATION
Member of JAPAN PROPERTY MANAGEMENT ASSOCIATION
Group member of REAL ESTATE FAIR TRADE COUNCIL
最后更新日期
2026/04/24
下次更新日期
2026/05/02
合同期
-
0800-111-6663(免费)
来自海外: +81-3-5155-4671
