(最終更新日:2025年12月09日)
☆フリーレント1カ月(賃料のみ)12/15までの契約に限り☆ ☆ペット飼育可(小型犬or猫1匹迄)☆
ID :1567856
※お問い合わせ時にこちらのID番号をスタッフにお伝えお願い致します。
1LDK マンション 賃貸 東京都 大田区ハーモニーレジデンス蒲田アートヴィラ 0108




























































賃料・初期費用
169,800円
管理費
15,000 円
敷金
0 円
礼金
0 円
物件情報
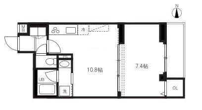
間取り
1LDK
面積
41.03㎡
築年
2024年1月
物件種別
マンション
アクセス
交通
京浜東北・根岸線 蒲田 徒歩 10分
京急本線 京急蒲田 徒歩 13分
住所
東京都 大田区 蒲田本町1丁目9-7
0800-111-6663(無料)
海外から: +81-3-5155-4671
詳細情報
賃料
管理費
169,800 円
15,000 円
敷金
礼金
0 円
0 円
保証金
敷引金・償却金
- 円
- 円
間取り
1LDK
面積
41.03㎡
築年
2024年1月
階
1階 / 5階建
向き
東
物件種別
マンション
物件構造
鉄筋コンクリート造
住宅保険
要
入居可能日
即入居可
こだわり条件
ペット可/プロパンガス/風呂・トイレ別/シャワー有/コンロ2口以上/洗濯機置き場(室内)/オートロック/エレベータ有/バルコニー/フローリング/宅配ボックス/駐輪場/バイク置き場/角部屋/TVモニター付きインターホン/温水洗浄便座/浴室乾燥機/独立洗面台/防犯カメラ/インターネット使用料無料/クローゼット・押入れ/シューズインクローゼット/エアコン有
追記事項
-
備考
■短期解約違約金:1年未満2カ月 ■解約予告:2カ月前 ■プレミアデスク代の中に登録料4400円(税込)を含みます。 ■PET飼育時 礼金1ヶ月積み増し ■駐輪場等の共用部については【共用管理】まで直接問合せ下さい。 ■本物件は電子契約となります。 ※写真は参考となりますのでご注意ください。
※ 掲載情報と現状が異なる場合は現状優先といたします。
所在地
住所
東京都 大田区 蒲田本町1丁目9-7
交通
京浜東北・根岸線 蒲田 徒歩 10分
京急本線 京急蒲田 徒歩 13分
備考
保証会社
加入要(保証会社名:株式会社グローバルトラストネットワークス)
保証会社利用料:初回保証料
月額総賃料の30%〜100%(最低保証料 20,000円〜)
+ 年間保証料(10,000円)もしくは月間保証料(1,000円〜)
情報提供元
株式会社グローバルトラストネットワークス 新大久保支店
取引態様:媒介
〒169-0072 東京都新宿区大久保1-15-15 AKIYAMA BLD 2階
宅地建物取引業 国土交通大臣(2)第9148号
(公社)東京都宅地建物取引業協会 会員
(公財)日本賃貸住宅管理協会 会員
(公社)首都圏不動産公正取引協議会 団体会員
(最終更新日:{date})
2025/12/08
次回更新日
2025/12/16
契約期間
-
0800-111-6663(無料)
海外から: +81-3-5155-4671
