(最終更新日:2025年12月08日)
インターネット月額基本使用料無料(CYBER HOME)Wi-Fi完備
ID :1698005
※お問い合わせ時にこちらのID番号をスタッフにお伝えお願い致します。
1LDK マンション 賃貸 東京都 江東区プレール・ドゥーク亀戸 907










































賃料・初期費用
179,000円
管理費
10,000 円
敷金
- 円
礼金
179,000 円
物件情報
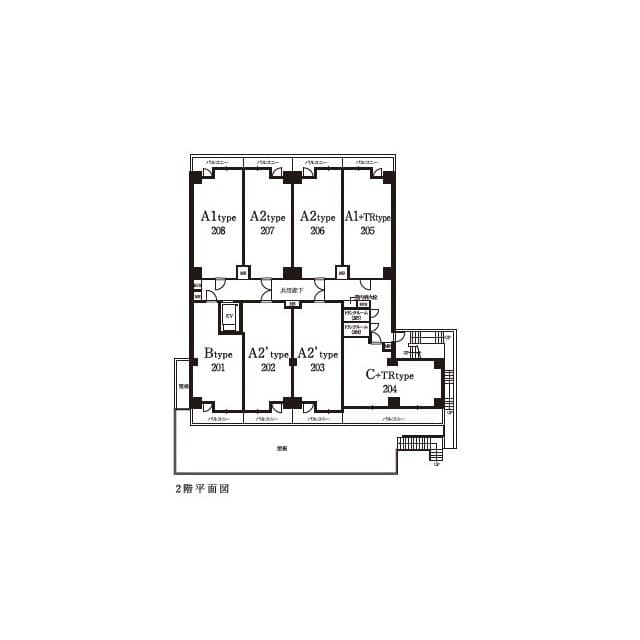
間取り
1LDK
面積
36.37㎡
築年
2025年8月
物件種別
マンション
アクセス
交通
総武線 亀戸 徒歩 8分
東武亀戸線 亀戸水神 徒歩 7分
都営新宿線 大島 徒歩 8分
住所
東京都 江東区 亀戸7丁目43-6
0800-111-6663(無料)
海外から: +81-3-5155-4671
詳細情報
賃料
管理費
179,000 円
10,000 円
敷金
礼金
- 円
179,000 円
保証金
敷引金・償却金
- 円
- 円
間取り
1LDK
面積
36.37㎡
築年
2025年8月
階
9階 / 12階建
向き
北
物件種別
マンション
物件構造
鉄筋コンクリート造
住宅保険
要
入居可能日
即入居可
こだわり条件
2人入居可/ペット相談/都市ガス/風呂・トイレ別/システムキッチン/追い焚き機能有/洗髪洗面化粧台有/洗濯機置き場(室内)/CS/BS/オートロック/エレベータ有/バルコニー/フローリング/宅配ボックス/駐輪場/バイク置き場/光インターネット回線/TVモニター付きインターホン/温水洗浄便座/浴室乾燥機/防犯カメラ/エアコン有
追記事項
-
備考
◇新築◇ 亀戸駅8分!1LDK!
※ 掲載情報と現状が異なる場合は現状優先といたします。
所在地
住所
東京都 江東区 亀戸7丁目43-6
交通
総武線 亀戸 徒歩 8分
東武亀戸線 亀戸水神 徒歩 7分
都営新宿線 大島 徒歩 8分
備考
保証会社
加入要(保証会社名:株式会社グローバルトラストネットワークス)
保証会社利用料:初回保証料
月額総賃料の30%〜100%(最低保証料 20,000円〜)
+ 年間保証料(10,000円)もしくは月間保証料(1,000円〜)
情報提供元
株式会社グローバルトラストネットワークス 新大久保支店
取引態様:媒介
〒169-0072 東京都新宿区大久保1-15-15 AKIYAMA BLD 2階
宅地建物取引業 国土交通大臣(2)第9148号
(公社)東京都宅地建物取引業協会 会員
(公財)日本賃貸住宅管理協会 会員
(公社)首都圏不動産公正取引協議会 団体会員
(最終更新日:{date})
2025/12/04
次回更新日
2025/12/12
契約期間
-
0800-111-6663(無料)
海外から: +81-3-5155-4671









