(最終更新日:2025年10月29日)
ID :1808243
※お問い合わせ時にこちらのID番号をスタッフにお伝えお願い致します。
2LDK マンション 賃貸 愛知県 名古屋市東区プレサンスジェネ新栄町駅前葵 708号室










賃料・初期費用
146,000円
管理費
10,000 円
敷金
0 円
礼金
146,000 円
物件情報
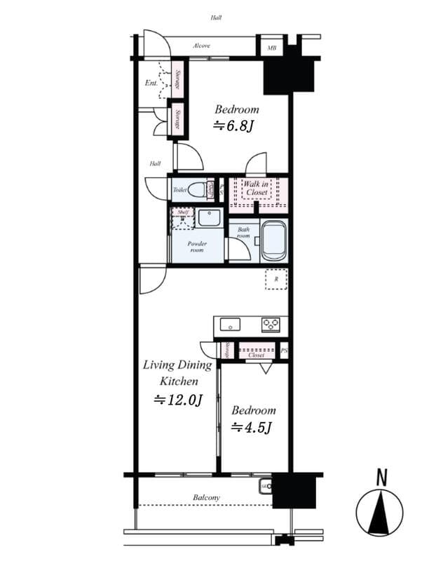
間取り
2LDK
面積
56.6㎡
築年
2021年8月
物件種別
マンション
アクセス
交通
名古屋市営東山線 新栄町 徒歩 2分
中央本線 千種 徒歩 12分
住所
愛知県 名古屋市東区 葵1丁目22-18
0800-111-6663(無料)
海外から: +81-3-5155-4671
詳細情報
賃料
管理費
146,000 円
10,000 円
敷金
礼金
0 円
146,000 円
保証金
敷引金・償却金
- 円
- 円
間取り
2LDK
面積
56.6㎡
築年
2021年8月
階
7階 / 15階建
向き
南
物件種別
マンション
物件構造
鉄筋コンクリート造
住宅保険
要
入居可能日
2025-11-下旬
こだわり条件
2人入居可/都市ガス/風呂・トイレ別/コンロ2口以上/ウォークインクローゼット/洗濯機置き場(室内)/オートロック/フローリング/TVモニター付きインターホン/独立洗面台/防犯カメラ/シューズインクローゼット/エアコン有
追記事項
-
備考
・個人申込の場合、「電子契約くん」でご契約いただきます。・お問い合わせについては、物件検索後の各項目の下記に記載しております【賃貸仲介様向けFAQサイト】にアクセスし、ご確認ください。
※ 掲載情報と現状が異なる場合は現状優先といたします。
所在地
住所
愛知県 名古屋市東区 葵1丁目22-18
交通
名古屋市営東山線 新栄町 徒歩 2分
中央本線 千種 徒歩 12分
備考
保証会社
加入要(保証会社名:株式会社グローバルトラストネットワークス)
保証会社利用料:初回保証料
月額総賃料の30%〜100%(最低保証料 20,000円〜)
+ 年間保証料(10,000円)もしくは月間保証料(1,000円〜)
情報提供元
株式会社グローバルトラストネットワークス 新大久保支店
取引態様:媒介
〒169-0072 東京都新宿区大久保1-15-15 AKIYAMA BLD 2階
宅地建物取引業 国土交通大臣(2)第9148号
(公社)東京都宅地建物取引業協会 会員
(公財)日本賃貸住宅管理協会 会員
(公社)首都圏不動産公正取引協議会 団体会員
(最終更新日:{date})
2025/10/29
次回更新日
2025/11/05
契約期間
-
0800-111-6663(無料)
海外から: +81-3-5155-4671