(最終更新日:2025年11月18日)
ID :1825285
※お問い合わせ時にこちらのID番号をスタッフにお伝えお願い致します。
1R マンション 賃貸 埼玉県 飯能市レジデンス106 406


















賃料・初期費用
48,000円
管理費
4,200 円
敷金
0 円
礼金
0 円
物件情報
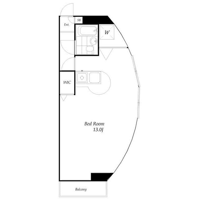
間取り
1R
面積
32.6㎡
築年
1991年3月
物件種別
マンション
アクセス
交通
西武池袋線 飯能 徒歩 7分
住所
埼玉県 飯能市 稲荷町16-8
0800-111-6663(無料)
海外から: +81-3-5155-4671
詳細情報
賃料
管理費
48,000 円
4,200 円
敷金
礼金
0 円
0 円
保証金
敷引金・償却金
- 円
- 円
間取り
1R
面積
32.6㎡
築年
1991年3月
階
4階 / 8階建
向き
-
物件種別
マンション
物件構造
鉄骨鉄筋コンクリート造
住宅保険
要
入居可能日
即入居可
こだわり条件
ペット相談/都市ガス/シャワー有/ウォークインクローゼット/洗濯機置き場(室内)/エレベータ有/TVモニター付きインターホン/インターネット使用料無料/クローゼット・押入れ/シューズインクローゼット/エアコン有
追記事項
-
備考
-
※ 掲載情報と現状が異なる場合は現状優先といたします。
所在地
住所
埼玉県 飯能市 稲荷町16-8
交通
西武池袋線 飯能 徒歩 7分
備考
保証会社
加入要(保証会社名:株式会社グローバルトラストネットワークス)
保証会社利用料:初回保証料
月額総賃料の30%〜100%(最低保証料 20,000円〜)
+ 年間保証料(10,000円)もしくは月間保証料(1,000円〜)
情報提供元
株式会社グローバルトラストネットワークス 新大久保支店
取引態様:媒介
〒169-0072 東京都新宿区大久保1-15-15 AKIYAMA BLD 2階
宅地建物取引業 国土交通大臣(2)第9148号
(公社)東京都宅地建物取引業協会 会員
(公財)日本賃貸住宅管理協会 会員
(公社)首都圏不動産公正取引協議会 団体会員
(最終更新日:{date})
2025/11/18
次回更新日
2025/11/25
契約期間
-
0800-111-6663(無料)
海外から: +81-3-5155-4671
